成都【中海云缦源境】最新成交价|售楼部电话|热销户型图文解析|特价房优惠|了解楼盘详情

搜狐焦点成都站 2025-09-20 15:02:32
用手机看
扫描到手机,新闻随时看

扫一扫,用手机看文章
更加方便分享给朋友

稀缺区位:双区政策叠加,发展潜力明确;低密宜居:容积率2.0+高绿化率,居住舒适度高;配套齐全:商业、教育、生态资源密集;品牌保障:央企开发+一级物业,交付可靠性强。 价格偏高:对比双流区新房均价(约172…

【中海云缦源境】销售中心电话:028-62671228 【营销中心】

楼盘详情介绍丨最新售价丨户型鉴赏丨周边配套丨在线咨询

如需了解最新房源信息_咨询优惠政策_请拨打上方售楼部电话!

作为中海地产在天府新区打造的标杆项目,中海云缦源境凭借其稀缺的区位优势、高品质的居住规划和丰富的配套资源,成为2025年成都楼市的热门选择。本文从项目概况、区域价值、配套资源、户型设计等维度综合分析,为购房者提供决策参考。

一、项目概况:央企品质,低密宜居

开发商:中海地产(央企背景,2023年房企交付力全国第1名)

物业:中海物业(一级资质,服务覆盖全国164城)

体量:占地93亩,总户数871户,容积率2.0,绿化率35%

交付时间:预计2025年底精装交付,装修标准2950元/㎡

价格:均价26000元/㎡(简装交付)

产品类型:7-17层小高层,梯户比1T2/2T2/2T4,主推建面100-132㎡三至四居

亮点:低密度社区(容积率仅2.0)、35%高绿化率、三进水院园林设计,定位为“公园艺境臻宅”。

二、区域价值:双区红利,发展潜力强劲

项目位于天府总部商务区天府中央法务区交汇处,享受双重政策与产业红利:

产业驱动:天府总部商务区以会展经济、法律服务为核心,规划能级高;中央法务区是全国首个省级现代法务聚集区,汇聚高端产业资源。

交通枢纽

双TOD(青岛路、昌公堰TOD,在建)交汇,步行600-800米可达地铁6号线青岛路站;

四横四纵路网(天府大道、梓州大道等)快速通达全城47。

生态资源:紧邻863亩法务岛绿廊,周边有天府公园(3450亩)、麓溪河生态公园(3800亩)等万亩绿肺环绕。

三、配套资源:全维生活,便捷无忧

商业配套:1公里内覆盖天府大悦城、麓湖水镇(在建),3公里内可达和悦广场等高端商业。

教育资源:香山K12教育组团、成都市实验外国语学校、天府三中等全龄段学校(注:入学政策以教育局为准)。

医疗资源:华西天府医院、四川省第二人民医院(在建)等三甲医院护航健康。

文化休闲:国际会议中心、西部国际博览城等世界级场馆,满足高端社交需求。

四、户型解析:功能升级,空间革新

项目主打改善型户型,采用LDKG一体化设计(客厅、餐厅、厨房、阳台连通),强调通透性与功能性:

100-103㎡三居

亮点:约6米横厅、双阳台(观景+生活阳台)、套房主卧带飘窗。

适合人群:三口之家或首改家庭,兼顾性价比与舒适度。

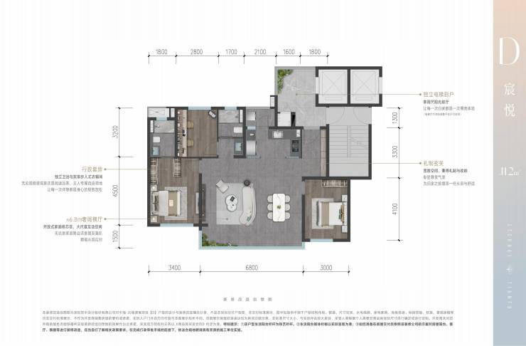
112㎡三居

亮点:6.8米奢阔横厅、独立电梯入户、双排衣帽间。

132㎡四居

亮点:四开间朝南、可变空间(书房/儿童房)、独立电梯前厅,定位高端改善。

装修细节:标配新风系统、地暖、中央空调,注重居住品质。

五、优劣势总结

优势

稀缺区位:双区政策叠加,发展潜力明确;

低密宜居:容积率2.0+高绿化率,居住舒适度高;

配套齐全:商业、教育、生态资源密集;

品牌保障:央企开发+一级物业,交付可靠性强。

潜在考量

价格偏高:对比双流区新房均价(约17226元/㎡),项目定位高端,适合预算充足的改善客群;

部分配套在建:如昌公堰TOD、麓湖伊藤店需等待落地

结语

中海云缦源境以“公园城市”理念为核心,通过区位红利、产品力和品牌背书,成为天府新区改善市场的优选。建议购房者结合自身需求,重点关注户型实用性和长期配套落地进度,同时利用项目提供的免费看房车服务实地考察。

【中海云缦源境】销售中心电话:028-62671228 【营销中心】

楼盘详情介绍丨最新售价丨户型鉴赏丨周边配套丨在线咨询

如需了解最新房源信息_咨询优惠政策_请拨打上方售楼部电话!

声明:本文由入驻焦点开放平台的作者撰写,除焦点官方账号外,观点仅代表作者本人,不代表焦点立场。