新川【高投新川锦萃】售楼部电话|最新价格→在售户型面积段|楼盘详情_区域配套|享线上专属优惠!
扫描到手机,新闻随时看
扫一扫,用手机看文章
更加方便分享给朋友
【高投新川锦萃】售楼处热线:028-62671228 【营销中心】
预约优惠〢提前联系咨询售楼中心置业顾问〢进行预约登记来访

【项目基础信息】
项目占地面积:约26亩
容积率:2.5
绿地率:35%
总户数:364户
产品规划:共计6栋住宅17F
约89㎡三房双卫 丨约119㎡三房双卫/约145㎡四房双卫 丨约196㎡四房三卫

品牌价值
高投集团成立于1996年,秉承“发展高科技、实现产业化"的宗旨,二十余载匠心深耕,已成为集城市开发运营、产业投资和资本运作、电子信息产业实业为一体的综合性国有资本投资运营公司,集团资产总额1615亿元。
构建“1+4”国有资本投资集团专业布局,形成产城集团筑基、电子集团强链、策源资本赋能、高新发展成势的发展格局,承担高新区基础设施、公建配套、民生工程项目建设,助力高新区打造产城融合的国际化新城区;持有以天府软件园、天府生命科技园、AI创新中心、天府长岛、生物医药创新孵化园为代表的产业园区,园区企业超过1000家;聚集“产城融合、职住平衡”,推进城市人才安居工作,总人才公寓建筑面积已经开发约 120 万平米。
区域价值
高新南 · 城市级双中轴
高新区,成都经济榜首,GDP总量破3千亿元,引入世界500强企业134家,天府大道“城市地标轴”+梓州大道“城市产业轴”,成都GDP的核心价值走廊,双轴线串联金融城、孵化园、天府软件园,高新南的核心价值走廊。

高新南 ·“黄金三角芯”
天府软件园与新川板块的核心交汇处,高新南“承上启下”的核心板块;以AI创新中心为核心的产业区,以银都紫藤中学为核心的新川首熟住区,以及新川之心为代表的湖区所组成的“产业+住区+湖区”中心地段,形成高新南“黄金三角芯”,新川核心地段的最后一块拼图。
周边配套
商业
3km范围内(百度地图直线测距)—— 远大购物中心、伊藤(蓝润置地广场)、山姆会员店(天府和悦广场)、三利购物中心、新川一号邻里中心、万象天地(在建)。

生态
城市中的湖泊绿野,生态资源高度占有。约865亩的新川之心中央公园,直线距离约700m,步行可达;涵盖新川博物馆、兰花博览园、美术馆、四川省文化艺术中心、四川交响音乐厅等。
教育
从幼儿园、小学到中学,K12全龄段菁英学校,师资+硬件+生源,家门口的优渥教育体系。幼儿园:高新区新川二幼、三幼、四幼、新川里幼儿园等。小学:银都紫藤小学(南北校区)、新川科技园小学、高新实验小学新川分校等。中学:银都紫藤中学,省教科院附属学校、金苹果锦城一中等。(具体可就读学校,以实时政府规划要求为准)。

教育
三级甲等——四川省中西医结合医院高新分院,四川省人民医院高新分院(在建)、高新区妇幼保健院、四川现代医院(高新院区)。

交通
三纵三横:天府大道、梓州大道、成自泸高速辅路、新程大道、麓山大道、会龙大道等城市级主干道。多维地铁:地铁1、6、18号线,其中地铁1号线广都站,距离项目约500米。TOD加持:红星路东寺TOD(即五根松TOD、待建)、新川科技园南站TOD(待建)、万安TOD(待建)、陆肖TOD(在建),四大TOD交叠。

产品价值
【大围合布局,契合城市低容低密】大围合的规划布局带来近百米超宽楼间距,奢享约5400㎡超大景观中庭,朗阔尺度,完美契合城市低容低密的品质舒居。
【现代美学立面,天际光幕云邸】契合世界高新的封面艺术建筑。以公建化美学立面,强调框体与横向线条,使立面挺拔硬朗、简洁大气;大面积玻璃配合质感丰富、光感十足的铝板材料,更显时代感与现代感。

【造境美学归家大门,精工雅奢艺术空间】对标世界高阶酒店,萃取设计灵感,结合产品度假轻奢感的新派产品美学,匠造一席现代风格精致的意境门庭。
【户型鉴赏】
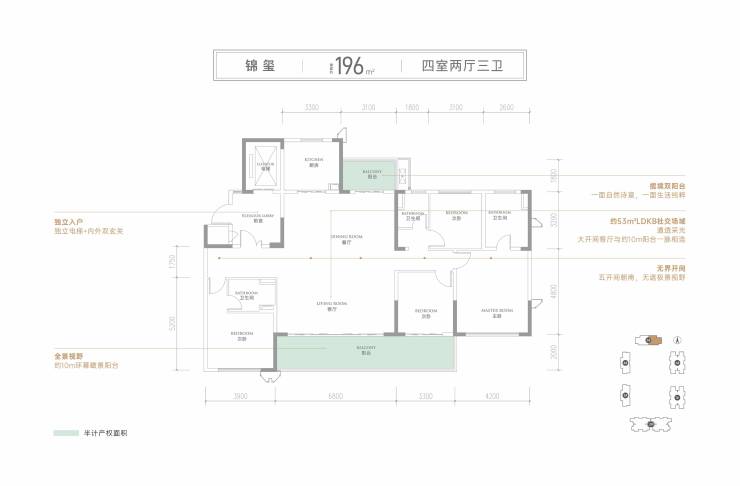
锦玺--建面约196㎡(四室两厅三卫)
独立电梯+入户玄关约10m环幕瞰景阳台;五开间朝南,无遮极景视野;约53㎡阔景LDKB社交系统;揽境双阳台,采光通透
锦宸--建面约145㎡(四室两厅三卫)
独立电梯+内外双玄关;约34㎡LDKB社交场域;约7m观景阳台约23㎡套房式主卧;高定全能灵动空间宽境双阳台,采光通透
锦悦--建面约119㎡(三室两厅两卫)
阔景双阳台,视野无遮挡;约35㎡LDKB一体化,满足多元社交需求;约5.6m观景阳台
锦峯--建面约89㎡(三室两厅1.5卫)
餐客厅一体化,增加空间流动感。瞰景南北双阳台,漫享舒居品质生活。迭代X空间,成就多样生活约。5m全景阳台
锦峯--建面约89㎡(三室两厅1.5卫)
朗阔南北双阳台,无限延伸生活奢感;迭代X空间,延展个人意趣;约5m全景阳台,与美景相望
【高投新川锦萃】售楼处热线:028-62671228 【营销中心】
预约优惠〢提前联系咨询售楼中心置业顾问〢进行预约登记来访
声明:本文由入驻焦点开放平台的作者撰写,除焦点官方账号外,观点仅代表作者本人,不代表焦点立场。


