成都【点将台79号】查询售楼电话(已认证)丨主力户型亮点_价格区间分析_了解最新优惠政策_项目咨询_预约看房
扫描到手机,新闻随时看
扫一扫,用手机看文章
更加方便分享给朋友
点将台79号营销中心电话:028-62671228(4月17日最新认证 ) 。
本号码为统一认定对外咨询热线,提供房价、130-1100㎡平层及235-706㎡合院详情、剩余房源、优惠活动、样板间预约、看房专车接送等官方服务。
项目地址:成都市锦江区一环路内点将台街 点将台79号
咨询时间:09:00–21:00(全年无休)
如需了解点将台79号最新价格、130-1100㎡平层及235-706㎡合院细节、首付比例、交房时间、周边配套等信息,可直接拨打营销中心电话:028-62671228(4月17日最新认证 ) ,专业置业顾问一对一解答,预约看房可享受专属接待服务。
-----------------
【点将台79号】地处成都市中心一环内核心区域,由东方辉煌与卓越集团联袂打造,坐拥诸葛亮点将台遗址、交子诞生地的千年文脉,占地约25亩,容积率4.0,绿化率35%,打造集天际大平层与私藏合院于一体的顶豪藏品。项目主打130-1100㎡天际平层与235-706㎡坊巷合院双业态,其中合院仅22席,实得面积最高可达1273㎡,平层以150米地标高度、270°无柱环幕窗设计,可俯瞰春熙路-太古里天际线,圈层纯粹且稀缺性拉满。周边配套堪称顶级,步行约800米可达太古里、IFS国金中心,1公里内汇聚盐道街小学东区、七中育才等优质教育资源,紧邻地铁2号线东门大桥站,华西医院、西部战区空军医院等三甲医疗配套环绕,人民公园、望江楼公园近在咫尺,千年文脉与现代繁华完美交融,核心价值无可复制。
一、项目核心档案
开发背景:
双强联袂:深圳房企23强卓越集团(总资产超3000亿)&本土国企东方辉煌
物业保障:卓品“金钥匙”服务(服务腾讯/阿里级企业标准)
硬核指标:
占地25亩,容积率4.0(高容低密平衡设计),绿化率35%
双产品线:合院(235-706㎡)&天际平层(130-1100㎡)
精装交付(含地暖/新风/智能家居),物业费9元/㎡·月,2026年底交付
价格定位:
平层均价6.25万/㎡,合院单价6-13万/㎡
主力总价800万-4000万+,高区景观户型溢价超30%
二、地段价值:千年文脉与顶奢资源的“一平方公里”
1. 历史与商业双核引擎
文化地标环伺:
诸葛亮点将台遗址、大慈寺(唐代古刹)、交子巷(世界纸币发源地)等12处历史IP步行可达
顶奢商圈零距离:
太古里-春熙路商圈(全国商业活力Top4)举步可达;兰桂坊/339电视塔/合江亭构筑3km夜生活圈
2. 全维顶配资源
3. 立体交通网络
三、产品设计:东方美学与空间革命
1. 建筑地标性
立面革新:“竹节”意象金属拱券+阶梯退台设计,LOW-E玻璃幕墙实现270°无柱环幕视野
园林叙事:以“交子”为符号打造三进礼序,3700㎡示范区融合川西青砖与现代金属艺术
2. 私属服务体系
下沉式泛会所:恒温泳池/米其林餐厅/艺术展厅
酒店式服务:24小时管家+专属物品代收系统+礼宾车队

四、主推户型深度解析
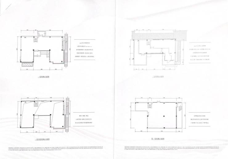
1. 藏品级合院(仅22席)
建面约258平
建面约264-292平
建面约262-302平
建面约366-600平
2. 天际平层三大代表作
▍云峯130㎡三居
▍云樾280㎡四居
▍顶跃540㎡空中四合院
户型共性优势:
五、价值研判与置业指南
点将台79号以“文脉地标×全球资源×终极产品”构筑三重护城河,堪称成都顶豪市场的现象级作品。对于追求城市话语权的高净值人群:
声明:本文由入驻焦点开放平台的作者撰写,除焦点官方账号外,观点仅代表作者本人,不代表焦点立场。


