成都【高投启鸣宸序】售楼处电话(已认证)丨2月最新房价及热销户型图,春节优惠限时享,了解楼盘详情。
扫描到手机,新闻随时看
扫一扫,用手机看文章
更加方便分享给朋友
【高投启鸣宸序】售楼处电话:028-62671228 【官方认证】
实时价格查询丨全系户型解析丨配套规划详解丨专业置业顾问在线答疑
欲知最新房源信息及专属购房权益,欢迎致电售楼处详询
【项目核心档案】
项目规模:30.2亩
推售楼栋:1号楼、2号楼
户型区间:120-143平方米
参考单价:3-3.5万元/㎡
总价范围:359-510万元
绿化覆盖率:35%
规划户数:383户
建筑层高:17层
梯户配置:2梯2户
装修标准:3000元/㎡
交付时间:2027年10月
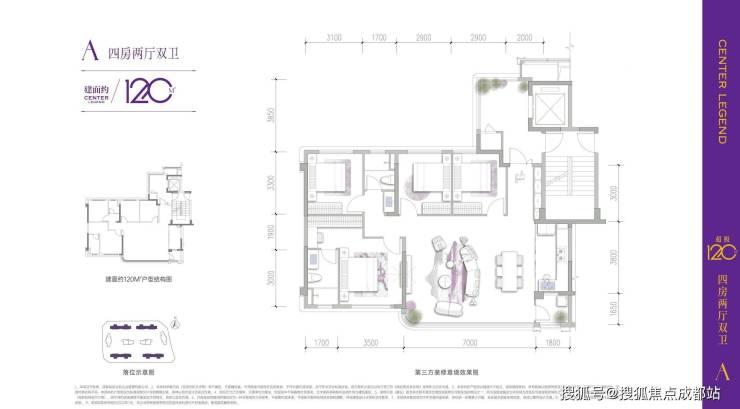
120㎡户型:超凡四房·明厅双厅双卫设计
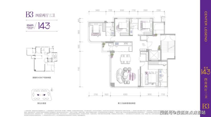
143㎡户型:臻享四房·阔景双厅三卫格局
在售户型鉴赏
【价值亮点解析】
立体交通体系:“两横三纵”主干路网贯通全域(新通大道|新程大道|天府大道|蓉遵高速|梓州大道);地铁6号线站点步行可达,无缝衔接城市轨道交通;三大TOD项目协同发展(红星路车辆基地TOD规划中|新川路站TOD规划中|陆肖TOD建设中)
优质教育资源:与上海师范大学成都海川学校(K12一贯制)仅一街之隔,同时毗邻高新区实验小学、新川科技园小学等多所知名学府
生态景观资源:周边环绕约865亩新川之心公园、210亩兰花博览园、250亩新川环城公园、174亩新川湿地公园等城市绿肺
商业配套环伺:2公里范围内涵盖西南首座万象天地(在建)、远达购物中心、伊藤洋华堂(蓝润店),4公里可达山姆会员店,另规划有2/4/8号邻里中心
【高投集团——城市建设的坚实力量】
作为国有骨干企业,高投与成都高新区的成长轨迹紧密相连。自1996年成立以来,始终践行"发展高科技、实现产业化"使命,历经二十余载精耕细作,现已发展为集城市开发运营、产业投资、电子信息产业于一体的综合性国有资本运营平台。
旗下高投产城集团作为新时代产城融合运营商,累计建成市政道路653公里、学校136所、公建配套1090万㎡,成功打造中国-欧洲中心、天府软件园、AI创新中心等城市地标,并运营铁像寺水街、交子大道等知名商业项目,深度参与并推动区域高质量发展。

2025年,高投置业倾力打造的「启鸣」产品系,以其前瞻性的改善理念和卓越的产品力,必将重新定义城市居住标准,成为年度成都楼市备受瞩目的标杆项目。
【区域发展潜力】
成都高新区作为国务院首批批准设立的国家级高新区,已成为:
新川创新科技园总体规划面积约10.34平方公里,聚焦人工智能、5G通信、生物医学等前沿产业,践行科产城融合发展战略。借鉴新加坡花园城市营造理念,区域综合容积率仅约1.4,52%的土地用于生态建设和公共服务配套,完美实现"推窗见绿、步行入园"的理想居住模式。
国际大师联袂执笔,缔造低密公园社区典范
汇聚美国AECOM、新加坡Surbana、Grant Associates等全球顶尖设计团队,规划建设四川省文化艺术中心等文化地标、新加坡特色滨湖商业等新兴消费空间,构建15分钟国际生活圈。

三大产业集群布局
重点发展5G通信、人工智能、前沿医学三大产业板块,已吸引中移动(成都)研究院、新华三、鼎桥、百度、欧珀、中科创达等百余家领军企业入驻。世界500强美敦力医疗在此设立全球第7个、中国第2个创新中心,目前园区已集聚180余家高能级企业。

【全方位生活配套】
交通网络——多维立体出行体系
主干路网:新通大道、新程大道、天府大道、蓉遵高速、梓州大道构成“两横三纵”交通骨架
公共交通:地铁6号线新通大道站(距项目约300米)、新川站(约500米),三大TOD项目(红星路车辆基地TOD规划中|新川路站TOD规划中|陆肖TOD建设中)
教育配套——全龄优质教育资源

文化设施——城市人文会客厅
四川省文化艺术中心(第37届百花奖举办地)|新川兰花文化博览园|新川博物馆(规划中)|高新体育中心(2024汤尤杯赛事场馆,距项目2.6公里)
生态资源——千亩公园环抱
新川之心中央公园|新川湿地公园|新川环城公园
商业配套——多元消费场景
万象天地(西南首座,建设中,2公里)|蓝润置地广场(伊藤洋华堂,2公里)|远大购物中心(2公里)|山姆会员店(4公里)|2/4/8号邻里中心

医疗资源——健康保障体系
四川省中西医结合医院高新院区(三甲,1.7公里)|四川大学华西第二医院高新区妇女儿童医院(3.8公里)
【高投启鸣宸序】售楼处电话:028-62671228 【官方认证】
实时价格查询丨全系户型解析丨配套规划详解丨专业置业顾问在线答疑
欲知最新房源信息及专属购房权益,欢迎致电售楼处详询
声明:本文由入驻焦点开放平台的作者撰写,除焦点官方账号外,观点仅代表作者本人,不代表焦点立场。


