成都【k101广场楼盘】楼盘详情→售楼处电话|在售户型解析|特价房信息|周边配套介绍

搜狐焦点成都站 2025-10-09 11:15:08
用手机看
扫描到手机,新闻随时看

扫一扫,用手机看文章
更加方便分享给朋友

30亿巨资打造约27万㎡K101航母级旗舰商业综合体,集热带雨林购物公园、甲级写字楼、奢华精品酒店、红石艺术中心、潮玩美食街、公园精奢LOFT等于一体的公园城市商业综合体。 约24-34㎡公园精奢LOFT…

【合信k101广场】销售中心电话:028-62671228 【营销中心】

楼盘详情介绍丨最新售价丨户型鉴赏丨周边配套丨详细在线解答

如需了解最新房源信息_咨询优惠政策_请拨打上方售楼部电话!

【基础信息】

占地面积:约87亩,一期约45.8亩,二期约41.6亩

总建筑面积:27万平米

容积率:3.5,一期2.6,二期4.5

销售产品:LOFT商办+中环全能铺王(40年产权)

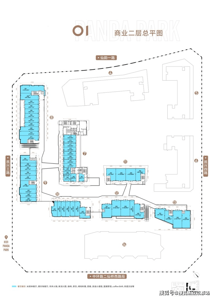
销售商铺总套数:一期仅售199套,1-2层商铺

商铺面积:约12-80㎡,可自由组合,整层或整栋销售

商铺公摊率:5-6栋约3.2%,9栋约8.4%,10栋约9.2-12.35%

商铺价格:待定

商铺层高:一层5.2- 6米。二层4.5米,部分坡屋顶可搭夹层,部分送屋顶或露台

LOFT总价:套一24㎡主力总价约32-33万 /套;套二34㎡惠后总价套均约46万

LOFT建筑面积:套一约24㎡,套二约34㎡(可售整层,5栋单层面积约709㎡ ,6栋单层面积约716㎡)

LOFT层高:4.2米

LOFT总户数:一期2521户

LOFT交付标准: 5栋清水。

6栋第三方公司精装:24㎡套一装修费43000元/套

34㎡套一装修费53000元/套,34㎡套二装修费56000元/套

梯户比:5、6栋4梯27户

一批次销售楼栋:LOFT商办5、6栋,商铺5、6、9、10栋

一批次楼栋层数:5、6栋23层(1F商业,2-23F LOFT商办),9、10栋2层商业

物业公司:四川天诚物业服务有限公司

物业费:商业8元/㎡,LOFT商办5元/㎡

公摊:35-38% 得房率66-110%

交房时间:1期商业街和5栋LOFT清水房2026年9月30日交房。6栋精装2027年3月31日交房

开发商:成都知德置业有限公司

【二八板块商业中芯-成都主城CCD金中环】

二八板块是成都“七大副中心”之一,定位成都CCD中央文创商务休闲区。本项目是二八板块87亩超大规模纯商业用地,30亿巨资打造27万平米中国公园城市商业综合体。对标新加坡机场“星耀樟宜“世界地标商业的定位,西部文创之芯。

中国工业遗产群落公园,中国文创超级总部集群

东郊记忆艺术区迭代升级为成都文创艺术商业中心,新青年消费聚集群。红仓完美文创公园、东八区影视文创园、101仓库等文创项目聚集。B站西南总部、腾讯电竞基地、安得音乐、花吃动漫、光影在线、无忧传媒级等文创总部企业聚集。

高房价居住区 百万常住人口

二八板块3000亩全新城市高品质居住、文创艺术区域。成华区高房价板块之一,品牌开发商高端住宅汇聚,预计新增15万高净值高收入人群。百万常住人口,保障本项目商业的稳定运营。

热带雨林购物公园 成都文旅购物目的地

本项目距大熊猫繁育基地约6公里,距春熙路--大慈寺约7公里。构建 “大熊猫繁育研究基地--本项目--春熙路大慈寺”新旅游游线,成都网红景区之一,四川文旅购物目的地。

双地铁双TOD 约208亩二仙桥公园环绕

【双地铁】: 7号线(中环环线)、17号线(双流区九江至成华区高洪站)

【双TOD】: 二仙桥TOD、八里庄TOD

【三横】: 中环、二环、三环

【三纵】: 建设路、成华大道一成南高速、府青路一成绵高速

【6大学府环绕】:K12公立学校七中英才学校,成都嘉祥外国语学校成华校区、双林小学(馨韵学校)、成华小学(蜀都分校)、成都理工大学、电子科技大学、成都市第十三幼儿园、第二十六幼儿园青秀园等全龄段优质学府环绕

【优质医疗在侧】:华西第二医院妇女儿童医院、四川省第一中医医院将在今年正式投用,成都市二医院等优质医疗资源,为健康保驾护航。

【项目整体介绍】

约27万㎡中国公园城市商业综合体

30亿巨资打造约27万㎡K101 航母级旗舰商业综合体,集热带雨林购物公园、甲级写字楼、奢华精品酒店、红石艺术中心、潮玩美食街、公园精奢LOFT等于一体的公园城市商业综合体。

亚洲巨型大熊猫状球形建筑

本项目 PANDA PARK 热带雨林购物公园,由3个非标准的玻璃球组成,大熊猫形态全玻璃网壳建筑,亚洲超大单层玻璃网壳建筑。

奇遇世界精彩 购物森临其境

本项目 PANDA PARK 热带雨林购物公园,以热带雨林、瀑布、森林、花卉、河流构建沉浸式公园购物奇趣新场景。梦幻彩虹瀑布、穹顶超级光影秀、水上实景剧场、奇趣水上市集、秘境河流、惊奇玻璃栈道、花车大巡游、动植物绿色生态乐园、空中奇珍花园等景点荟萃,全球轻奢品牌汇聚,四川文旅购物目的地。

大型实景演艺大秀 西部文创之芯

西部文创之芯,中国商业标杆。水上实景剧场、穹顶超级光影秀、梦幻彩虹瀑布……震撼大型实景沉浸式文旅大秀。西部超级文旅IP,成都文旅购物目的地。101个森活场景,101次精彩奇遇。

中国商业标杆 成都文旅购物目的地

本项目 PANDA PARK热带雨林购物公园,集国际轻奢品牌、成都首店、潮牌运动、珠宝配饰、国际美妆、数码科技、餐饮休闲娱乐、文化体验、儿童娱乐教育、生活服务等商业业态,体验前所未有的购物与文旅融合,西部时尚消费目的地,成都旅游购物必玩景点之一。

本项目打造国际中心 166米摩天新地标

超级总部楼宇经济,高区奢华精品酒店,中低区甲级写字楼。双色玻璃艺术流线,全玻璃幕墙城市标杆,成都仰望的城市天际线。

【二八板块商业中芯?中环全能铺王】

潮玩美食街 24H成都不夜城

以潮流文化为突破口,餐饮主力业态为引擎核心,构建文化潮流,精致社交场主题集群,【2+4+6】布局,比肩世界的城市商业街区。

————

两大主力店--精品超市、电影院

四大功能--潮流零售集合、潮流文化展陈、青年娱乐文化、社交复合空间

六大业态--潮牌、零食、餐酒、茶咖、live house、非遗

精品超市/电影院双主力店

成都CCD商业中芯,24小时全时段不夜城,潮玩美食开放式全业态街区、大型精品超市、电影院双主力店。成都首店、明星潮牌、原创设计师品牌、米其林餐厅、黑珍珠餐厅、市井火锅、新派川菜、万国潮流美食、御厨国宴、民谣小酒馆、艺术茶咖、非遗、Live house……

米其林/黑珍珠餐厅 世界美食锋味

本项目汇聚全球各地美食,在舌尖上体验全球美食锋味。米其林餐厅 、黑珍珠餐厅、市井火锅、新派川菜、万国潮流美食等聚集于此,沉浸式体验世界风情与韵味。

热带雨林购物公园赋能 中环全能铺王

约27万方超大型城市综合体,收藏级铺王。1层部分6米层高,大开间短进深,大小自由组合,独立全临街铺王,做24小时的生意,2层金铺部分带花园、露台、阁楼。全业态硬件配套,烟道、燃气、给排水、隔油池预留到位,部分全业态餐饮铺,满足品牌商家要求。

【公园精奢LOFT?收藏级优+资产】

公园精奢LOFT 5.0版优+资产

本项目用造酒店的手法造LOFT,让小户型享受壕宅高级感,对总规、景观、大门、大堂、泛会所、建筑立面和户型等进行全面升级。一期约46亩净用地面积,2.6低容积率,将高定艺术和海岛度假场景融入生活,金中环二八商业中芯,低总价小面积,收藏级优+资产。

围合式大中庭 海岛度假景观

秉承海岛度假景观美学艺术精髓,约5800㎡海岛大中庭,约90米超大楼间距,

兰卡海岛度假景观、艺术景观亭、水上漂浮卡座、阳光草坪、环岛健身跑道……好像沉醉在阳光浪漫的海岛上度假。

铂金俱乐部·共享社交场

以“艺术、健康、便捷、共享”的圈层理念,书吧、健身中心、自助洗衣房、斯洛克台球、共享厨房,多功能小型PARTY聚落等全方位荟萃。

高定单元门厅

6米层高首层艺术大堂

低总价小面积 4.2米跃境LOFT

约24-34㎡公园精奢LOFT,约4.2米层高跃境空间,每一寸空间都经过设计师们仔细推敲,高利用率的魔法户型,全屋创新收纳系统,有效扩容生活空间,大面宽短进深,全景落地窗,阔尺采光面,收藏级的优+资产。

【产品赏析】

【合信k101广场】销售中心电话:028-62671228 【营销中心】

楼盘详情介绍丨最新售价丨户型鉴赏丨周边配套丨详细在线解答

如需了解最新房源信息_咨询优惠政策_请拨打上方售楼部电话!

声明:本文由入驻焦点开放平台的作者撰写,除焦点官方账号外,观点仅代表作者本人,不代表焦点立场。