成都【兴唐新川雅境】售楼处电话_12月房价_热售户型_年末特价活动_来电预约享优惠_线上售楼中心_楼盘首页
扫描到手机,新闻随时看
扫一扫,用手机看文章
更加方便分享给朋友
【兴唐新川雅境】售楼处热线:028-62671228 【营销中心】
预约咨询〢提前联系咨询售楼中心置业顾问〢进行预约登记来访!
预约优惠〢售楼中心置业顾问为您买房保驾护航〢—匠心钜制恭迎品鉴 !
------------------
兴唐地产2023高新诚意之作
高新南· 大师作 | 约132-143㎡奢居小高层
项目推荐理由:
位处新川企业总部聚集地,聚集精英人群
新川主城稀缺地段
成熟地段,配套齐全
更新迭代,2T2南北朝向板式布局
公园式生态,内外约24000㎡绿地景观包围,户均绿化面积30㎡
户户大阳台、大面宽、大落地开窗设计
与一站式教育仅一街之隔。
【项目基础信息】
【项目占地】约33亩
【容积率】约2.5
【绿地率】约35%
【层高】3.15米
【楼层高度】14层-17层
【项目规划】规划8栋住宅
【房源套数】397套
【交付标准】精装交付
【梯户比】2梯2户,每户带独立入户光厅
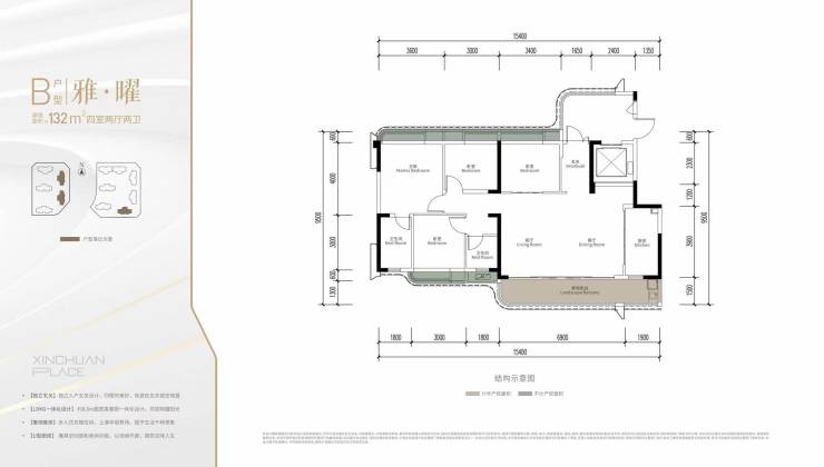
【产品面积】132㎡(套四双卫),143㎡(套四三卫 )
【总价区间】423-574万
【物业公司】龙湖物业
【物业费】3.8元/㎡/月
【社区配套】小区私人会所、会客空间、小区户外健身区、户外童乐区
一、品牌篇
兴唐成立于2009年8月,专业从事房地产开发与经营管理的房地产企业,秉承“诚信为本,求实创新”的一贯方针,公司坚持自有资金开发和修建,不做开发贷款,此次也是全资拿地。新川雅境是公司首进高新的诚意之作。
二、区域篇
【新川科技园·世界交融之城】
新川创新科技园占地10.34平方公里,定位于缔造一座创新、生态、人文高度融合的“世界交融之城”,集聚全球高科技创新型企业和人才,成为成都市开放-交流-融合-创新的极核和引擎。

便捷的交通出行 畅达全城
地铁:6号线新通大道站(约200m)、规划20号线和22号线(五期)主要道路:绕城(四环)、麓山大道(五环)、天府大道、梓州大道、蓉遵高速
企业总部聚集地 精英人群聚集
35个重大项目入驻,包括世界500强在内的创新企业、上市公司集团总部/研发中心;已入驻头部企业:OPPO、方正、拓尔思信息科技、超图软件、蓝盾信息、迈科、天象互动、美敦力、海思科、微芯生、好医生等
公园城市示居住范本区
新川总面积10.34平方公里,配套17.5%的公园绿地,为区域业主提供优质的公园住居体验,也是未来城南高新区最宜居的板块。
新川雅境毗邻新川之心公园,新川湿地公园,新怡公园 尽享公园诗意生活。
优质的教育资源 教育无忧
区域内共规划24所公立学校、包括13所幼儿园、7所小学、2所中学、2所九年一贯制学校等 ,1所私立学校 金苹果锦城一中(K12),教育资源丰富,年龄段全覆盖;
新川雅境:行知小学、新华学校、四川省教科院附小、高新区蒙新小学、四川省教科院附小崇和校区。

邻里中心/商业综合体 品质生活3号邻里中心下楼即达,华润·时光里、华润·万象天地(在建)、圆中商业广场(在建)等综合配套举步直达;
3号邻里中心:融入新加坡第四代“邻里中心”的核心理念,通过互联网+的社区应用(交通、养老、医疗、幼托等),提升精细化公共服务品质。
文化配套 高品质的文化生活
家门口看世界最顶级艺术团体演出“省级文化中心建成后,四川人在家门口就有机会观看世界最顶级艺术团体的演出。”
体育运动配套 健康生活
成都高新区体育中心:成都2021年大运会和世乒赛的重要比赛场馆之一,由多功能体育馆、全民健身馆、服务中心等部分组成;

中体城(紧邻高新体育中心):运动训练中心、体医融合运动康复中心、专业户外装备集散中心、中体训练局冠军俱乐部、中体击剑俱乐部、中体训练,预计在2024年初步呈现。

医疗配套 健康护航
医疗配套(三甲公建):四川省中西医结合医院高新医院、四川省医院高新分院(规划)

三、户型篇:
精装设计-孟也“明星御用设计师”
项目设计意向 参考图
四、龙湖物业———国家一级物业管理资质
新川雅境项目将由龙湖物业担任,龙湖是国内第一家公开发布管理和服务标准的物业企业,被誉为“中国物业管理第一品牌”。业主满意度连续十四年超过90%以上,4度荣膺全国住宅满意度综合第一。龙湖物业以4500+条服务细则,‘事无巨细、无微不至“地完美诠释着”善待您一生“的理念。
(项目信息以现场公示及合同为准,教育、配套等以实际呈现为准)
---------------
【兴唐新川雅境】售楼处热线:028-62671228 【营销中心】
预约咨询〢提前联系咨询售楼中心置业顾问〢进行预约登记来访!
预约优惠〢售楼中心置业顾问为您买房保驾护航〢—匠心钜制恭迎品鉴 !
声明:本文由入驻焦点开放平台的作者撰写,除焦点官方账号外,观点仅代表作者本人,不代表焦点立场。


