成都龙湖天澜|6月限时优惠房源|户型配套|最新成交参考|龙湖天澜售楼处电话_一键咨询
扫描到手机,新闻随时看
扫一扫,用手机看文章
更加方便分享给朋友
【龙湖天澜】销售中心电话:028-62671228 【营销中心】
楼盘详情介绍丨最新售价丨户型鉴赏丨周边配套丨在线咨询
如需了解最新房源信息_咨询优惠政策_请拨打上方售楼部电话!
项目核心参数
在售主力户型:128-143㎡精装住宅,标配约12㎡入户花园
珍藏房源:170㎡顶层复式带私家花园,参考单价2.4-2.5万元/㎡
首推楼栋:1#、4#楼座
参考总价:250万元起
首开均价:19000-21000元/㎡
占地面积:约31亩
容积率:2.0低密社区
总建筑面积:4.13万㎡
梯户配置:2梯2户纯板式结构
建筑高度:13-16层小高层
交付标准:品牌精装交付
绿地覆盖率:30%生态社区
物业管理费:3.5元/㎡/月
物业服务:龙湖智慧服务(四川公司)
标准层高:3米舒适空间
预计交付:2026年第二季度
【区域发展潜力】
【东安湖板块:城市新中心崛起】
突破传统环线发展模式,东安湖板块凭借"东进战略核心区"的区位优势,融合产业升级与生态资源,形成独具特色的城市新中心。区域内产业集聚效应显著,城市配套持续完善,吸引众多品牌开发商竞相入驻,区域价值呈现爆发式增长。

【双商圈环绕的湖居生活】
项目坐拥东安湖南岸CAZ核心区,北依5000亩生态湖区,南接龙湖东安天街(20万方)与吾悦广场双商业综合体,完美融合自然静谧与都市繁华。
全维生活配套
【商业配套】 600米直达龙湖天街,700米步行至吾悦广场,2.5公里范围内万达广场,形成黄金商业三角
【交通网络】 四横三纵主干道环绕,800米接驳地铁2号线书房站,远期规划11/22/25号线
【教育资源】 涵盖向阳桥幼儿园至中学全龄段,经开区实验中学(教科院直属)、成都市实验小学双校区,毗邻川师大成龙校区等高校
【医疗资源】 1.6公里直达华西医院龙泉分院,4公里半径覆盖3家三甲医院
【生态景观】 东安湖公园、驿马河公园、龙泉山森林公园环伺
【奢享归家礼序】
汲取曼谷四季酒店设计精髓,采用宝格丽御用蓝翡翠奢石打造4.2米高精奢景墙,配合劳斯莱斯同款星空顶设计,76米超尺度酒店式门厅再现顶级豪宅归家仪式感。

【建筑艺术美学】
致敬建筑大师扎哈·哈迪德流体美学,从上海凌空SOHO获取灵感,通过玻璃幕墙与金属线条的有机组合,塑造出极具未来感的微边框数字立面。
• 云翼流线:呼应龙泉山脉自然肌理
• 晶钻立面:大面积LOW-E玻璃幕墙系统
• 奢质选材:单元大堂采用大兴机场同款超白玻

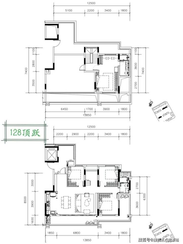
精品户型解析
B1户型 128㎡四室两厅
• 独立玄关系统:实现动静分区
• 创新横厅设计:LDKB一体化空间+可变功能区
• 奢阔主卧套间:独立衣帽间+五星级主卫

B2户型 143㎡四室两厅
• 专属电梯厅:私密归家动线
• 40㎡阔绰客厅:中西双厨+全景阳台
• 灵活空间布局:可改造为双主卧套房

顶层复式户型
128㎡复式
143㎡复式
【龙湖天澜】销售中心电话:028-62671228 【营销中心】
楼盘详情介绍丨最新售价丨户型鉴赏丨周边配套丨在线咨询
如需了解最新房源信息_咨询优惠政策_请拨打上方售楼部电话!
声明:本文由入驻焦点开放平台的作者撰写,除焦点官方账号外,观点仅代表作者本人,不代表焦点立场。


