成都深业泰蓉府(售楼处)欢迎您-售楼处电话|楼盘动态 /价格/地址/项目详情速查攻略

搜狐焦点成都站 2025-09-17 11:05:08
用手机看
扫描到手机,新闻随时看

扫一扫,用手机看文章
更加方便分享给朋友

户型区间:102-143㎡(套三至套四) 商业集群:泛悦城市广场/华润熙悦广场/青龙广场三大综合体环绕,项目自建1.7万㎡商业医疗资源:成华区人民医院(在建)等4所医疗机构分布周边教育体系:1公里内覆盖成都…

深业泰蓉府】售楼处电话:028-62671228 【营销中心】

楼盘实时价格丨户型赏析丨配套规划丨置业顾问在线咨询

获取最新房源动态及专属优惠,敬请致电售楼处

一、项目核心参数

开发商:深业集团(千亿级国企)

物业形态:70年产权住宅

占地面积:约8万平方米(120亩)

总规划:15栋小高层(18F/15F)

当前推售:2-9栋及14栋

户型区间:102-143㎡(套三至套四)

梯户配置:两梯四户

精装标准:2900元/㎡

价格体系:单价2-2.3万元/㎡,总价208-330万

交付时间:2025年6月

容积率:2.0(低密社区)

绿化率:30%

公摊比例:14-15%(优于市场平均水平)

车位配置:1:1.5(充足停车位)

二、项目核心价值

1. 品牌背书——国企巨擘的实力保障

深业集团作为深圳特区建设的先驱者,自1983年创立以来持续推动城市发展:

2. 黄金区位——中优战略核心区

项目坐落于成华区新北天地商贸旅游发展区核心,该区域作为"中优"战略重点发展板块,荣获"2022最具投资吸引力城区"称号。周边规划涵盖商业、文旅、生态等多元配套,发展潜力显著。

3. 立体交通网络

轨道交通:3号线动物园站(900米)、7号线双站(1.2公里)路网体系:府青路贯通城市环线,30分钟直达主城核心区

4. 全能生活配套

商业集群:泛悦城市广场/华润熙悦广场/青龙广场三大综合体环绕,项目自建1.7万㎡商业医疗资源:成华区人民医院(在建)等4所医疗机构分布周边教育体系:1公里内覆盖成都市第二十四幼儿园至石室初中青龙校区全龄段教育

5. 低密生态住区

规划亮点:• 借鉴沙河八景打造30余处景观节点• 五进制归家动线设计• "一轴一环三园八景"园林体系• 2.0容积率营造舒适居住尺度

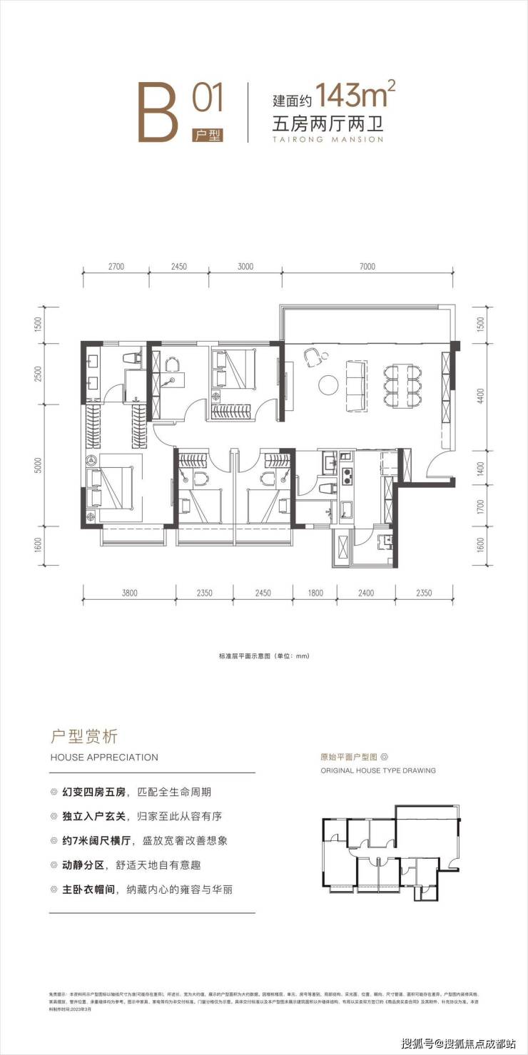
三、精品户型解析

A02户型 102㎡ 三室两厅两卫

117㎡ 三室两厅两卫

A01户型 131㎡ 四室两厅两卫

【深业泰蓉府】售楼处电话:028-62671228 【营销中心】

楼盘实时价格丨户型赏析丨配套规划丨置业顾问在线咨询

获取最新房源动态及专属优惠,敬请致电售楼处

声明:本文由入驻焦点开放平台的作者撰写,除焦点官方账号外,观点仅代表作者本人,不代表焦点立场。