成都【华兴滨江锦宸楼盘】全面解析:涵盖楼盘详细信息、售楼处电话、在售户型深度剖析、特价房资讯及周边配套情况

搜狐焦点成都站 2025-10-10 12:08:06
用手机看
扫描到手机,新闻随时看

扫一扫,用手机看文章
更加方便分享给朋友

中叠:245-248平(约50平左右) 上叠:174平(约60-70平左右屋顶花园)在售楼栋:5栋131平;4栋129平;3栋2栋159平;1栋140平(临河双拼,中间叠拼) 公摊:19-21%高层,别墅…

【华兴滨江锦宸】售楼处热线:028-62671228 【营销中心】

预约享优惠〢提前联系咨询售楼处置业顾问〢进行预约登记来访

基础信息:

开发商:成都市华兴住宅房地产开发有限公司

在售户型:

下叠:240平(花园约60平左右➕夹层)

中叠:245-248平(约50平左右)

上叠:174平(约60-70平左右屋顶花园)

双拼:324平(约60-200左右)

高层:129.131.140.159平

单价:高层均价2.1万;上叠2.87万左右;中下叠2.74万;双拼3.4万左右

总价:高层271万起;上叠500-550左右;中下叠670万左右;双拼1110-1270万左右

在售楼栋:5栋131平;4栋129平;3栋2栋159平;1栋140平(临河双拼,中间叠拼)

总楼栋:26栋

总楼层:17层

层高:3.1米

梯户比:高层2T2

交房时间:现房

公摊:19-21%高层,别墅9-11%

得房率:90-100%

朝向:高层东西南北,别墅南北

占地:86亩

绿化率:30%

容积率:1.5%

拿地时间:2020年初

产权年限:都是70年

总户数:503户

物业公司:成都市华兴住宅房地产开发有限公司

物业费:3.6元

车位比:1:2.3

装修情况:清水

付款方式:都可以

贷款银行:都可以

地铁:5号线,15/22号线规划中

实景图

也是「所见即所得」的置业安心优选,更以仅1.5容积率,立序城南墅质人居典范。

周边配套

交通:一轨:5号线骑龙站;三横:天府五街、元秀路、华阳大道;三纵:剑南大道、华府大道、华秀路。立体路网无界城芯生活。

商业:大润发商圈、世豪广场商圈、银泰城商圈。三大繁华商圈环绕。

学校:约900米怡心第一实验学校(直线距离);成都教科院附属学校、成都七中高新校区等,公立、私立优资学府环伺。

医疗:项目邻四川大学华西医院高新院区,预计2026年可投入运营。成都市第三人民医院高新院区(已批复),为每一位业主家人的健康保驾护航。

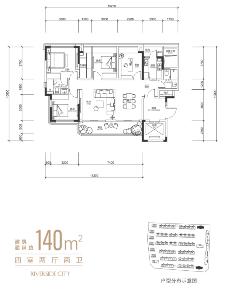
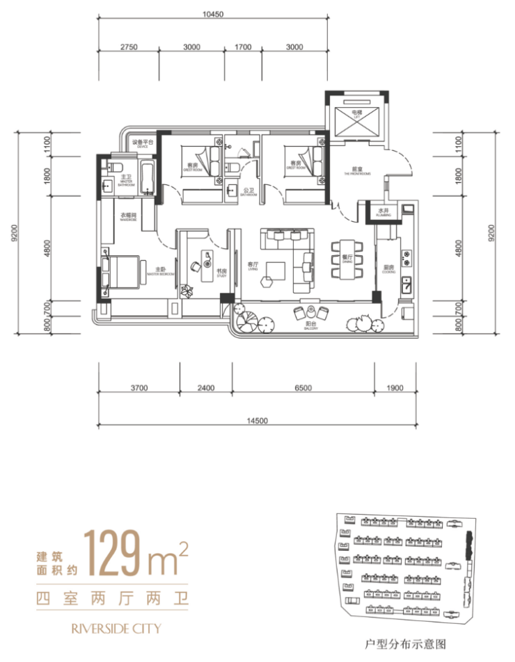
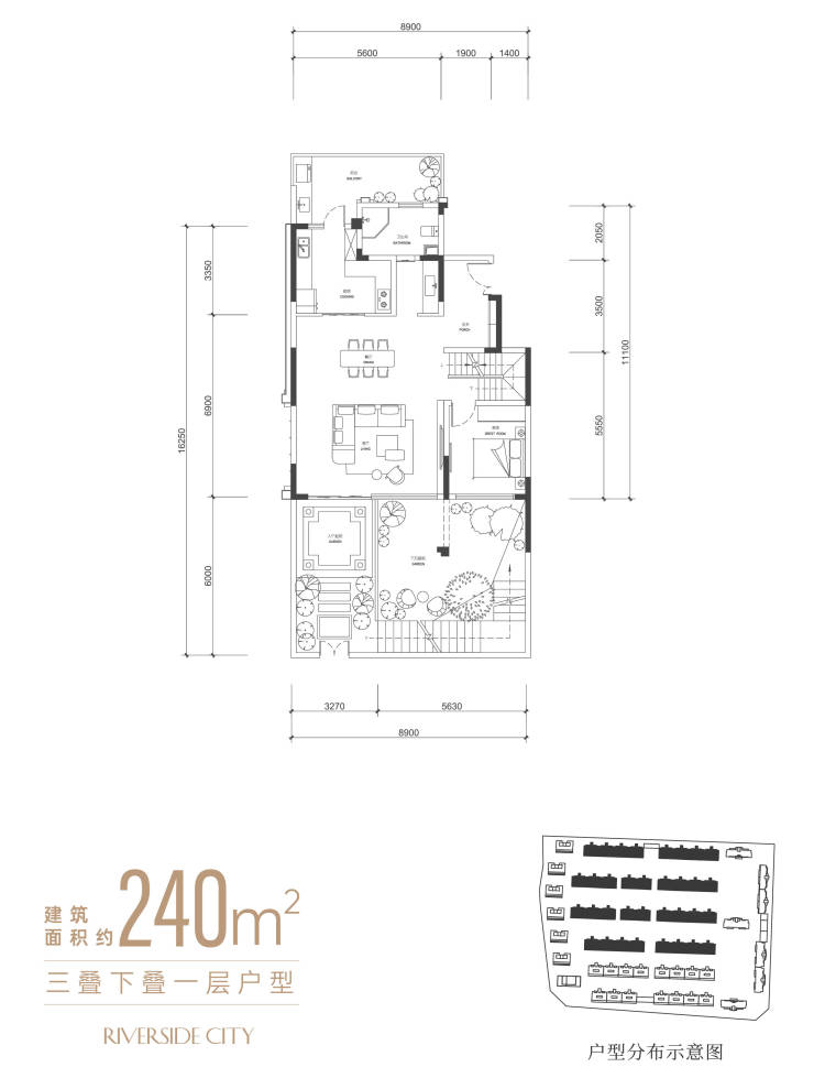
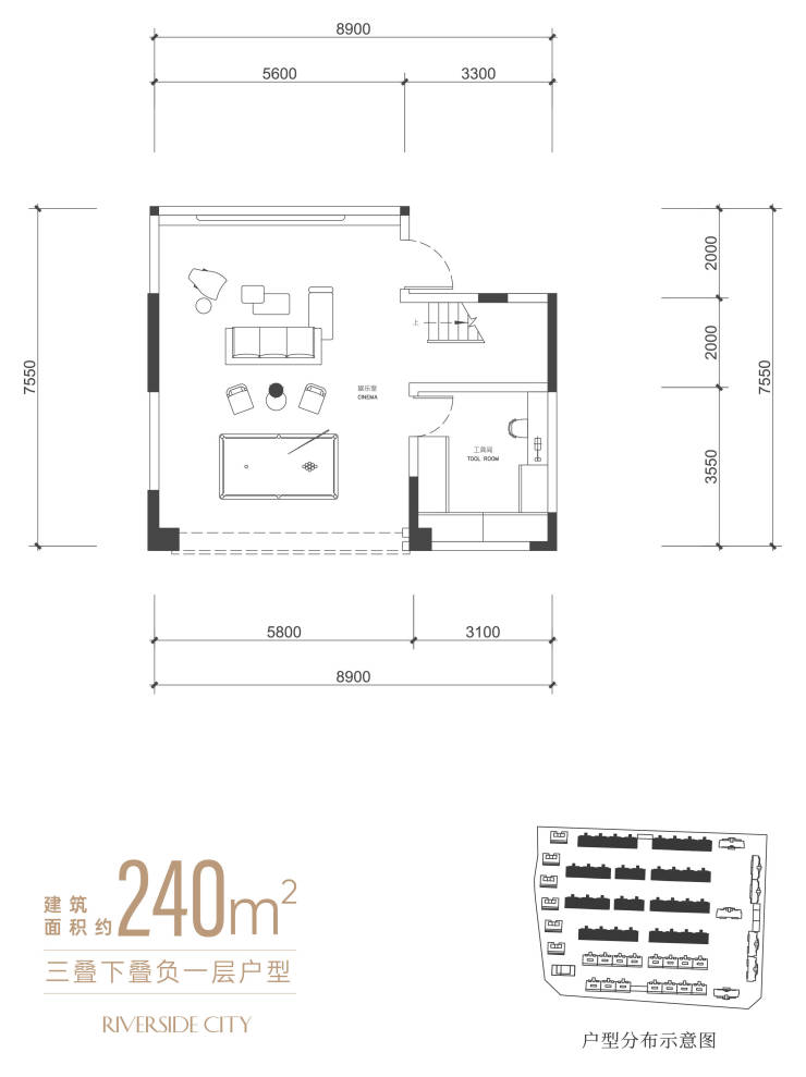
户型图

面约129-159㎡天际阔景平层

建面约174-325㎡江岸雅奢墅境

【华兴滨江锦宸】售楼处热线:028-62671228 【营销中心】

预约享优惠〢提前联系咨询售楼处置业顾问〢进行预约登记来访

声明:本文由入驻焦点开放平台的作者撰写,除焦点官方账号外,观点仅代表作者本人,不代表焦点立场。