成都天投中海天府合印利弊(优点、缺点)分析,一文读懂,在售户型和价格
扫描到手机,新闻随时看
扫一扫,用手机看文章
更加方便分享给朋友
【天投中海天府合印】售楼处热线:028-62671228 【营销中心】
预约咨询〢提前联系咨询售楼中心置业顾问〢进行预约登记来访!
预约优惠〢售楼中心置业顾问为您买房保驾护航〢—匠心钜制恭迎品鉴 !

品牌价值
成都天投集团&中海企业集团
国企与央企的实力联手,带来品质双重保障
双强携手并进之下,著定天府青年封面之作
区域价值
天投中海·天府合印,位于天府新区核芯天府前湾板块,紧邻现行天府商务区,且北接麓山、西连麓湖等高端板块,地理优势得天独厚。是天府新区核芯区城市规划的收官之作,参照上海前滩、杭州前湾先进经验,将形成“天府森林新绿窗”、“政法服务新高地”、“公园生活新社区”三大功能定位。
板块内布局五大主题公园社区组团、串联社区的生态走廊、双TOD交通枢纽等资源,以公园人居为核芯定位,与CBD的商业规划相生相伴,高端居住基因凸显。
产品创新
大师匠造,LWK建筑事务所X伯利森景观设计
天府新区少见的70亩低密大盘,承载更多生活场景想象
约170米景观中轴,丰富社区场景及园林线条
独特“甲板式挑高观景平台”环幕视野,自然无界
创新的风帆楼型,立面造型,更优采光及视野
项目品质
同步国际潮流,打造现代都会活力住区
还原星级酒店式入户尊崇体验
约40米跨度星空归家门廊
约6米净高入户大堂
为天府青年带来尊崇归家仪式感
在售户型
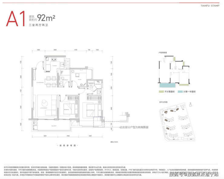
三房经典款主力户型
92户型:三面宽朝南,南向开间9.8米

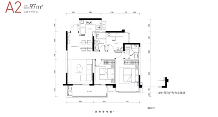
A2户型:97平三房两厅双卫
这个户型就是天府合印唯一南向阳台封窗,计算全面积的户型,原因在于它需要公建化外立面保持城市界面的统一,但首批次在价格上也做了对应倾斜,主力总价段约200-210万。
户型本身的设计非常成熟,97平做到了三房两厅双卫,基本上就算满足了功能性要求了。而面宽9.8米,三开间朝南,三面采光,明厨明卫,则说明采光通风效果不错,舒适度会比较高;尺度方面,客厅开间3.6米,主卧开间3.3米,也是够用的;而主卧和书房0.7米进深的飘窗赠送,也是一个亮点。

D户型:113平三房两厅双卫
该户型为项目主力北侧户型,面宽达到了12.1米,双面采光。为了减少南侧户型对它的遮挡和影响,它将最不重要的次卫和书房放在了可能被遮挡的位置。而相对重要的客餐厅和厨房,则选择了朝北,并做了一体化设计,使得整体空间看上去仿佛达到了130-140平左右的户型。

E户型:133平四房两厅双卫

【天投中海天府合印】售楼处热线:028-62671228 【营销中心】
预约咨询〢提前联系咨询售楼中心置业顾问〢进行预约登记来访!
预约优惠〢售楼中心置业顾问为您买房保驾护航〢—匠心钜制恭迎品鉴 !
声明:本文由入驻焦点开放平台的作者撰写,除焦点官方账号外,观点仅代表作者本人,不代表焦点立场。


