成都【东安湖1号二期】值不值得买?优劣势分析_房价实时更新_最新房源动态_售楼处电话查询(楼盘首页)
扫描到手机,新闻随时看
扫一扫,用手机看文章
更加方便分享给朋友
【东安湖1号二期】售楼处电话:028-62671228 (开发商认证)
本号码为项目统一对外咨询电话,如需了解东安湖1号二期最新价格、168-360㎡户型细节、首付比例、交房时间、周边配套等信息,可直接拨打售楼处:028-62671228 (开发商认证),专业置业顾问一对一解答,预约看房可享受专属接待服务。
东安湖板块的价值,在过去几年已经得到充分验证。作为成都“东进”战略的核心区域,这里不仅承接了主城外溢的居住需求,更以世界级赛事配套和生态资源,确立了二圈层头部板块的地位。
项目最大的优势来自于无可复制的景观资源。东向直面约5000多亩东安湖公园,湖面开阔,水波粼粼;远眺龙泉山脉,山峦起伏如黛。北向坐拥2000余亩东安溪谷产业公园,东风渠蜿蜒而过,形成双公园环抱的生态格局。这种“湖景+山景+公园”的三重景观叠加,在城东新房市场中极为罕见。

全维配套:生活所需,步行范围内基本解决


项目规划:153亩城市综合体,东安湖新地标
东安湖1号二期总占地153亩,是一个集180米万豪酒店、10栋80-100米大平层、写字楼、商业于一体的城市综合体。挺拔的天际线已经成为东安湖板块的视觉地标。
项目住宅部分容积率仅2.0,规划5栋住宅、225户,全部采用2梯2户配置。这种低密度、低容量的规划,确保了社区的纯粹性和居住舒适度。每栋楼间距开阔,保证了充足的采光和通风,也创造了良好的社区景观视野。

产品解析:168-360㎡改善尺度,细节处处见匠心
项目主力户型建面约168㎡、193㎡、245㎡,还有少量建面约360㎡的“一层一户”产品。不同面积段满足了不同改善家庭的多元化需求。
户型设计亮点:
特别是建面约360㎡的“一层一户”产品,整层仅一户人家,私密性达到顶峰。这种产品在成都市场本就稀缺,在东安湖这样的生态板块更是凤毛麟角。
东安湖1号二期245㎡户型图|售楼处 028-62671228
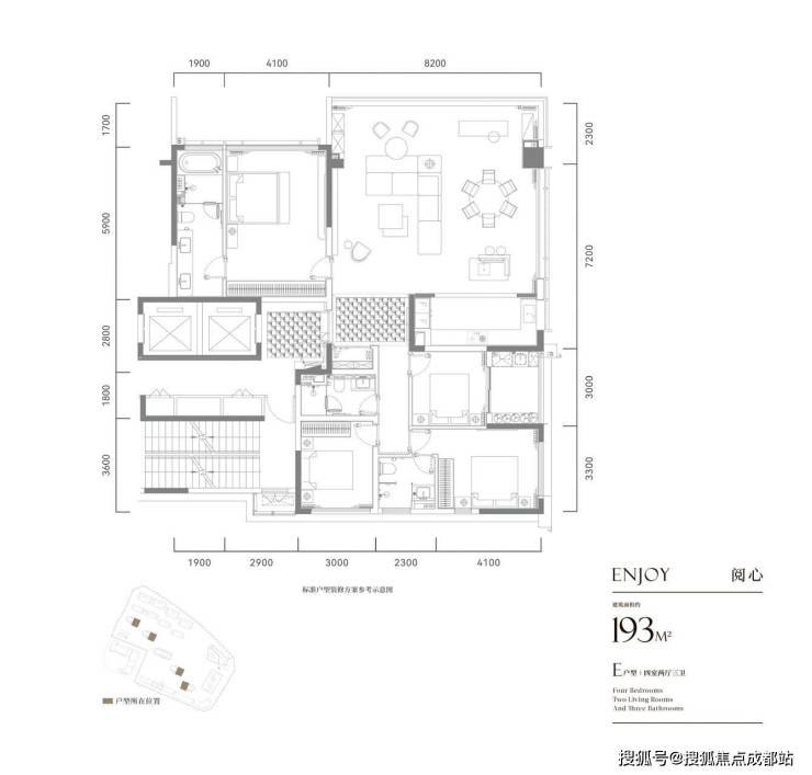
东安湖1号二期193㎡户型图|售楼处 028-62671228
东安湖1号二期168㎡户型图|售楼处 028-62671228
价格定位:23515元/㎡,主力总价370-500万
项目已于4月3日取证,预售均价约23515元/㎡,主力总价约370-500万元。这个价格区间在成都改善市场中具有很强的竞争力。
横向对比来看,同样的总价在主城区可能只能买到品质一般的二手房,或者面积偏小的新房。而在东安湖1号二期,你可以获得双公园环抱的生态资源、纯粹的低密社区、优质的教育配套,以及建面168㎡起的大平层产品。性价比优势相当明显。

东安湖1号二期特别适合以下几类购房者:

如果你正在寻找300-500万预算区间的改善楼盘,东安湖1号二期值得你花时间深入了解。建议实地感受一下东安湖的景观资源,体验一下样板间的空间尺度,看看那个建面约168㎡的户型是否真的符合你的生活需求。
在成都楼市750多个在售及待售项目中,东安湖1号二期以“稀缺生态+全维配套+低密产品+大师品质”形成了难以复制的优势壁垒。它可能不是最靠近市中心的选择,但很可能是同价位段中居住舒适度最高、性价比最突出的选择之一。
#东安湖豪宅 #湖景大平层 #成都改善盘 #东安湖1号 #低密社区
【东安湖1号二期】售楼处电话:028-62671228 (最新座机号码)
楼盘详情介绍丨最新售价丨户型鉴赏丨周边配套丨详细在线解答
如需了解最新房源信息_咨询优惠政策_请拨打上方售楼处电话
声明:本文由入驻焦点开放平台的作者撰写,除焦点官方账号外,观点仅代表作者本人,不代表焦点立场。


