成都【华兴滨江锦宸】房价信息|售楼处电话|项目户型图|特价房优惠|周边配套|提前预约国庆看房享优惠
扫描到手机,新闻随时看
扫一扫,用手机看文章
更加方便分享给朋友
【华兴滨江锦宸】售楼处电话:028-62671228 (销售中心已认证)
在售户型图丨项目详情介绍丨特价房源丨周边配套丨详细在线解答
获取最新房源动态及专属优惠,敬请致电售楼处
楼盘基本信息:国企现房,主城稀缺低密墅区
华兴滨江锦宸位于成都市双流区华府板块元秀路1199号,由成都市华兴住宅房地产开发有限公司(国家一级开发资质)开发。项目占地约86亩,总建筑面积未明确提及,但容积率仅1.5,绿化率达30%,是主城罕有的低密现房墅区。产品涵盖高层、叠拼、双拼等多种业态,主力户型为建面约129-159㎡的天际阔景平层和174-325㎡的江岸雅奢墅境,现房销售,即买即住。
项目以“主城现房+低密滨江”为核心卖点,开发商华兴地产深耕成都26年,累计交付10个项目,服务约6.3万户业主,品质与口碑双保障。
户型解析:平层与墅境双线产品,空间利用率最大化
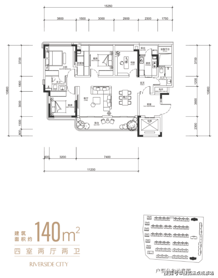
129-159㎡天际阔景平层:功能与尺度的平衡
布局亮点:横厅设计,客厅开间达6.8米以上,连接双阳台,形成IMAX级观景面;U型厨房动线流畅,配备独立玄关。
得房率优势:空间利用率高,无浪费面积,适配二胎家庭或三代同堂需求。
细节设计:全屋明管铺设,方便渗漏检修与装修改造;全地面自流平工艺,室内免打地坪即可安装地暖。



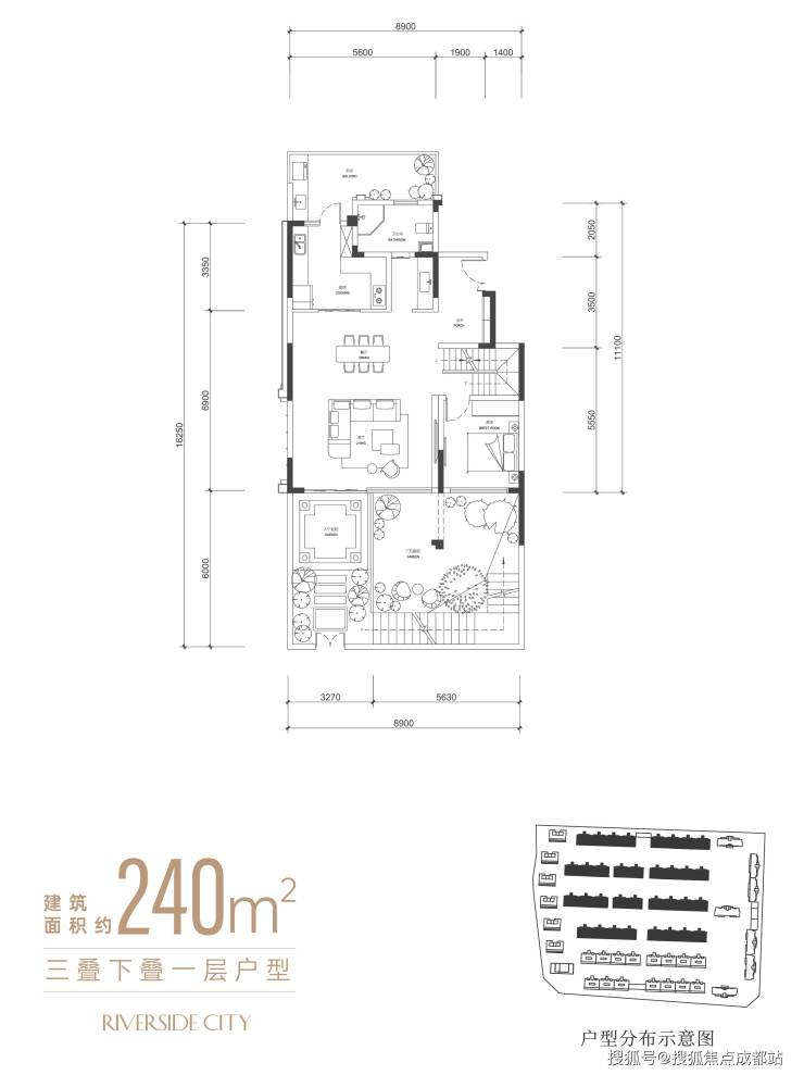
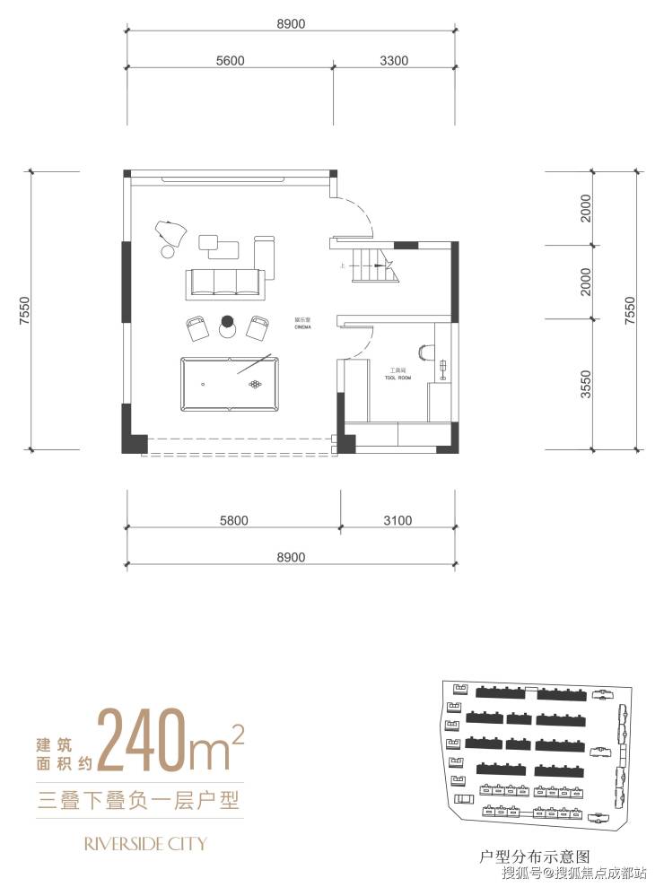
174-325㎡江岸雅奢墅境:一线临江的墅质生活
布局亮点:叠拼、双拼产品设计,奢阔层高(3.5米),私家庭院,一线临江,推窗即见千米江景。
高端配置:蓝钻花岗岩立面,酒店式入户大堂,彰显高端品质;全户型预留新风系统安装孔洞,细节领先市场。
圈层属性:适配高端改善客群,提供私密、宁静的层峯领地。
区域价值:大源南麓低密住区,江安河生态走廊
1. 板块定位:城南臻罕高端低密品质居住区
项目位于大源南板块,共享大源核心区醇熟资源(如世豪广场、银泰城商圈),同时生态资源优渥,人口密度低。板块规划有“骑龙创新园”与“民乐站TOD”,是成都城南高端低密人居的新标杆。
2. 交通网络:地铁5号线+三横三纵路网
地铁配套:直线距离5号线骑龙站约800米,三横(天府五街、元秀路、华阳大道)三纵(剑南大道、华府大道、华秀路)路网,立体交通无缝对接城芯生活,15分钟直达金融城,30分钟覆盖主城核心区。
3. 商业旗舰:三大商圈环绕,满足高端消费
项目2km范围内覆盖大润发商圈、世豪广场商圈、银泰城商圈,商业配套成熟,完全满足日常购物需求。

周边配套:全维资源集聚,赋能高端生活
1. 教育资源:全龄段名校集群
公立学府:怡心第一实验学校(直线距离约900米)、成都教科院附属学校、成都七中高新校区等。
私立资源:成都教科院附属学校初中部(东区)、四川省双流中学协和实验学校等,提供优质教育选择。
2. 医疗配套:三甲医院护航健康
华西资源:项目邻四川大学华西医院高新院区(预计2026年投入运营)。
市级医院:成都市第三人民医院高新院区(已批复),为业主健康保驾护航。
3. 生态资源:江安河+三大公园,城市绿肺
一线江景:西邻江安河,千米江景推窗即见。
公园环绕:周边滨江公园(在建)、三江公园(在建)、骑龙公园(规划中)环绕,形成生态宜居环境。

项目分析:主城现房标杆,低密墅质人居典范
1. 开发商实力:26年本土深耕,品质保障
华兴地产作为成都本土房企,具备国家一级开发资质,累计交付10个项目,服务约6.3万户业主,在产品规划、景观设计、物业服务等维度均获广泛赞誉。
2. 产品设计:低密布局,细节领先
低密社区:容积率1.5,建筑间距开阔,保证每户充足的采光与私密空间。
精工细节:全屋明管铺设、自流平地面、新风预留等设计,充分考虑业主实际需求,装修便捷性超越市场标准。
3. 市场定位:主城稀缺现房,高端改善首选
现房优势:规避期房风险,即买即住,品质所见即所得。
圈层属性:低密墅质产品,适配高端改善客群,提供私密、宁静的层峯领地。
资产潜力:主城低密现房,全维配套资源,保值增值潜力大。

主城低密现房标杆,江安河畔的高端人居典范
华兴滨江锦宸凭借主城稀缺现房、1.5低密容积率、一线江景资源及全维高端配套,成为2025年成都城南高端改善市场的现象级项目。其129-159㎡天际阔景平层与174-325㎡江岸雅奢墅境,以精工细节与奢阔空间,重新定义主城高端居住标准。对于追求主城便捷、品质生活及资产保值的高净值人群,华兴滨江锦宸无疑是成都楼市最值得关注的低密现房标杆。
【华兴滨江锦宸】售楼处电话:028-62671228 (销售中心已认证)
在售户型图丨项目详情介绍丨特价房源丨周边配套丨详细在线解答
获取最新房源动态及专属优惠,敬请致电售楼处
声明:本文由入驻焦点开放平台的作者撰写,除焦点官方账号外,观点仅代表作者本人,不代表焦点立场。


