成都【人居九林语鎏云阁】售楼部电话|房价动态更新_户型面积区间_特价房信息_楼盘介绍获取_|线上售楼处入口
扫描到手机,新闻随时看
扫一扫,用手机看文章
更加方便分享给朋友
【人居九林语鎏云阁】销售中心电话:028-62671228 【营销中心】
楼盘详情介绍丨最新售价丨户型鉴赏丨周边配套丨详细在线解答
如需了解最新房源信息_咨询优惠政策_请拨打上方售楼部电话!
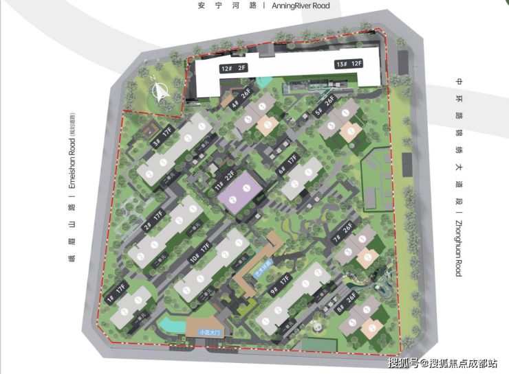
【项目概况】
项目占地:约63亩
开发商:成都人居成兴置业有限公司
产品面积:约118-129-143-187㎡臻装大平层
楼栋总数:11栋住宅、2栋商业
总户数:687户
停车位:988个
容 积 率:2.5
绿化率:约25%
得房率:约100%
楼层情况:1#2#3#6#9#10#:17F;11#:22F;4#5#7#8#:26F
单层层高:118/129㎡:3米;143㎡:3.1米;187㎡:3.15米
梯户比:2T2、2T3
装修标准:精装(3380元)
物业公司:(待定)
物业费:预计3.0元/㎡/月
拿地时间:2023.10.26
交房时间:2027.6.30
在售:3#4#6#
单价:约30000-31000元/㎡
118㎡预计总价:370万左右;129㎡预计总价:390万左右;143㎡预计总价:430万左右
【户型鉴赏】极致户型设计 迭新空间场景想象
花兮间——建面约118㎡
风澜舍——建面约129㎡
山禾悦——建面约143㎡(方厅)
云栖画——建面约143㎡(边厅)
璞隐归——建面约187㎡
【项目简介】
人居九林语鎏云阁,作为人居全新改善著作。项目位于2.5环内,大观TOD旁,双公园环伺,聚集国际化水平的商业、商务及生活中心。项目整体打造品质低密小高,同时呈现8000㎡城东首席海派复古极致园林,将当代生活理念与经典海派美学结合,演绎精致奢雅的美学场景空间。

【品牌篇】成都领航级国企 布局4城20区
成都兴城人居,市属国有城市开发企业首位,深耕成都20载,深度参与城市更新,致敬时代发展,已累计开发商品房项目70余个,布局成都20个区(市)县,自2017年以来,综合实力屹立成都第一梯队。

【区域篇】承袭壕奢基因 新启攀成钢2.0时代
东大街,成就了攀成钢,攀成钢,也成就了东大街。东大街,一条主轴贯穿向东,起于春熙、太古里,汇聚高能产业,高奢商业,同时汇聚D10、伊泰天骄、仁恒滨河湾等众多壕宅,板块价值再度跃迁!
【配套篇】
主城罕见·优交通
双环线:2.5环及三环双环线
双主轴:安宁河路和东大街
双地铁:7号线大观站/2号线东客站
双TOD:大观TOD(规划中)/东客站TOD(2号线)
国际商圈·醇生活
项目自带约3000㎡花园悦街,聚集ICC、万象城、光环中心、华宇广场(约600m)、和悦广场(约1.5km)等主城级大型商圈。
高知学府·优教育
成都英华小学(约1.5km)、成都英华中学(约1.5km)、蓉城小学(芙蓉校区约200m)
锦绣青城幼儿园(斑竹分园)、成都大学附属中学(约800m)等。 均在1.5公里范围内。
绿境环伺·临公园
项目紧邻约410亩的塔子山公园(约1km)、约125亩东站绿轴公园(约1km)。
健康保障·医院
成都友谊医院(约600m)、锦欣妇女儿童医院(约800m)
【项目篇】海派大宅,悦己主义高光新著
九林语鎏云阁,以约2.5精致容积、近1000㎡无界主题架空层、全维改善臻装空间,高定一座雅奢与美感并存的纯粹之境。
【项目亮点规划】
九林语鎏云阁:迭新城东改善新作
大面LOW-E玻璃+真石漆+铝板
约8000㎡成都首席海派复古圆林
全景入户光厅,270°环幕景观舱
【精质立面】光幕美学新颜 刷新区域天际峯面
九林语“林光生活美学”的全新演绎,特选真石漆搭配金属铝板,演绎近代摩登风范,争耀时代的双层LOW-E沐光玻璃,尽展天际线律之美。
【景观造极】纯粹园林新境 演绎酒店式精神哲学
约8000㎡城东首席海派复古园林,当代生活理念与经典海派美学相结合,将海派摩登生活方式与高定仪式感酒店空间相融合,演绎精致奢雅的美学场景空间。
【奢华礼序】高定公区新景 境遇新派尊崇人生
以Andaz安达仕酒店之思,雕琢超宽幅横轴归家府门、定制级单元入户大堂、典藏级地下星空光厅,成就城市新贵的精神归属与审美表达。
【花园商街】约3000㎡花园悦街 领航美好生活
利用白色框架重新界定、围合、包裹花园式商街,汇聚极富调性和质感的商业品牌,演绎城市人文秀场。
【人居九林语鎏云阁】销售中心电话:028-62671228 【营销中心】
楼盘详情介绍丨最新售价丨户型鉴赏丨周边配套丨详细在线解答
如需了解最新房源信息_咨询优惠政策_请拨打上方售楼部电话!
声明:本文由入驻焦点开放平台的作者撰写,除焦点官方账号外,观点仅代表作者本人,不代表焦点立场。


