成都滨江睿城_滨江睿城售楼处电话_最新价格_在售户型_特价房_配套_成都新房

搜狐焦点成都站 2025-03-10 06:59:00
用手机看
扫描到手机,新闻随时看

扫一扫,用手机看文章
更加方便分享给朋友

视高小学、视高中学、眉山天府新区第一小学、第一中学、眉山天府新区天府学校、清华附中天府学校(2023年9月1日小学部正式开学,初中部预计2024年开学)、眉山天府新区实验学校、四川科技职业技术学院等院校,从…

【滨江睿城】售楼处热线:028-62671228 【营销中心】

预约咨询〢提前联系咨询售楼中心置业顾问〢进行预约登记来访!

预约优惠〢售楼中心置业顾问为您买房保驾护航〢—匠心钜制恭迎品鉴 !

【6大必看理由】

超大赠送:约28%赠送率,视高高层赠送王,超高性价比

9S顶配全装:甄选数十种一线品牌,精雕细琢,无需费心拎包即住

全屋地暖:升级增配全屋地暖系统,更高效、更稳定的恒温系统

公园环绕:约3200亩柴桑河湿地公园,约1380米一线河景资源

繁华商业:自带约10万南城和悦广场,约7万方和悦里风情街区,和悦里夜市,繁华生活下楼即享

户型升级:套三单卫起步,舒居、压力小;双阳台;大面宽阳光客厅

一、项目基础信息

总占地:约69.02亩

整体容积率:1.99

推售楼栋:17号楼

楼层:23F(138套)

层高:2.95m

梯户比:3T6

赠送率:约28%

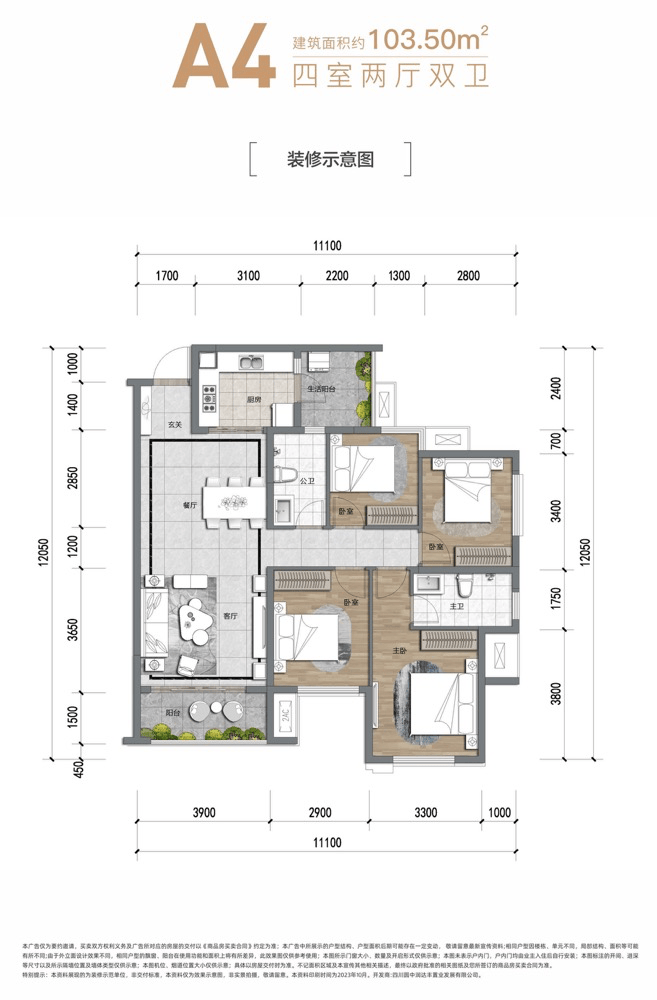
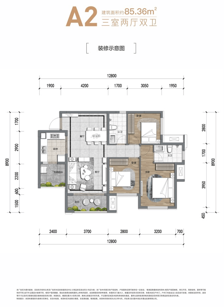
面积区间:76-103㎡

(套三单实得约99㎡、套三双实得约113㎡、套四双实得约131㎡)

物业费:1.9元/㎡

物业公司:滨江鼎信物业

二、品牌篇

三大品牌强强携手,为刷新时代而来

100强润达丰控股+跨界资源整合专家圆中集团+全球商业运营集团渝太集团

润达丰控股:截止2020年,土地储备超1200万方,企业总资产达500亿;

圆中集团:1998年创立于香港,已形成逾200亿美元资产规模;

渝太集团:1984年香港联交所上市,已在欧洲/澳洲/亚洲拥有多个优质商业地标物业。

三、区域篇

【便捷交通】

坐拥环天快速通道+天府大道财富十字路口,南天府门户口岸

四横五纵便捷完善交通路网

南北贯穿:兴隆湖,科学城18分钟便可到达,约45分钟便到环球中心。往北直达黑龙潭,眉山仁寿;

东西接壤:距离双流国际机场32公里、天府国际机场35公里,处于两大机场中间点的黄金位置;

S5线于2022年9月26日开工,预计2026年12⽉建成试运营

【顶级医疗】

三甲医疗资源聚焦 为健康保驾护航

三甲医院眉山天府新区人民医院(西南医科大学附属天府医院),预计2023年年底试运行,2024年6月全面开诊

三甲医院华西医院天府分院(2021年10月已开院)

按照二级医院标准建设的眉山天府新区第二人民医院,总占地50.24亩,总规划床位300张,2023年9月12日正式开工,预计2025年上半年完工

高康国际医院 (在建中) 等顶配医疗,为健康保驾护航

【顶级教育】

全龄段优质教育资源 铺就锦绣前程

项目配建眉山天府新区第四幼儿园

视高小学、视高中学、眉山天府新区第一小学、第一中学、眉山天府新区天府学校、清华附中天府学校(2023年9月1日小学部正式开学,初中部预计2024年开学)、眉山天府新区实验学校、四川科技职业技术学院等院校,从幼儿园到大学全龄教育配套。

【产业汇聚】

千亿产业汇聚 共筑产业新城

眉山加州智慧城、联想叠云科技创新园、天府金融港孵化中心、通威全球创新基地、天府讯动人工智能孵化园等产业汇聚,未来将会为区域带来巨大人口流量,带动整个区域的高速发展。

【公园环伺】

万亩生态公园 城市绿肺

紧邻约3700亩柴桑河湿地公园,约3000亩帽顶山公园,约710亩寨子山森林公园,南天府公园等。

四、大城兑现

大城生活,实景兑现,品质可鉴

【户型图】

【装修品牌升级】

以“行业TOP级”为标准,整合全球知名品牌,严苛甄选阿里斯顿、立邦、科勒、施耐德等数十种一线品牌,统一采购各品牌旗下头部产品,从源头保障臻装品质。

【装修效果图】

【滨江睿城】售楼处热线:028-62671228 【营销中心】

预约咨询〢提前联系咨询售楼中心置业顾问〢进行预约登记来访!

预约优惠〢售楼中心置业顾问为您买房保驾护航〢—匠心钜制恭迎品鉴 !

声明:本文由入驻焦点开放平台的作者撰写,除焦点官方账号外,观点仅代表作者本人,不代表焦点立场。