成都【滨江樾城】怎么样?项目最全介绍+卖点分析
扫描到手机,新闻随时看
扫一扫,用手机看文章
更加方便分享给朋友
【滨江樾城】售楼处热线:028-62671228 【营销中心】
预约咨询〢提前联系咨询售楼中心置业顾问〢进行预约登记来访!
预约优惠〢售楼中心置业顾问为您买房保驾护航〢—匠心钜制恭迎品鉴 !
---------
项目介绍:滨江樾城的位置在位置在锦江区2.5环以内,从滨江樾城占地面积约46亩,由四川中化锦城置业有限公司开发,容积率约4.0.绿植覆盖面积约30%,采用板塔结合的高层住宅,总层高为22层-32层,共24栋,2梯2户,目前在售156㎡-182㎡四室三卫,均带有入户花园和花园阳台,南北通透,环景窗幕采光好,双主卧套间享受私密空间。

周边配套:滨江樾城位于川师大板块,板块教育氛围浓厚,小区周围遍布全龄教育学府,更有名学府位于附近,目前就有菱窠路幼儿园小学、四川师范大学附属师范学校小学、川师附小(小/初中)、师大一中本部(小/初中)、七中嘉祥(幼儿园到高中一贯制)等等,小区所在区域师资力量雄厚,教育资源优质。并且川师大板块正在着力打造的劼人公园就在小区楼下,占地面积76亩,依托于李劼人故居,建造可游可玩的城市公园,目前已成为城东新晋网红打卡地,十分值得入手。
在售户型:

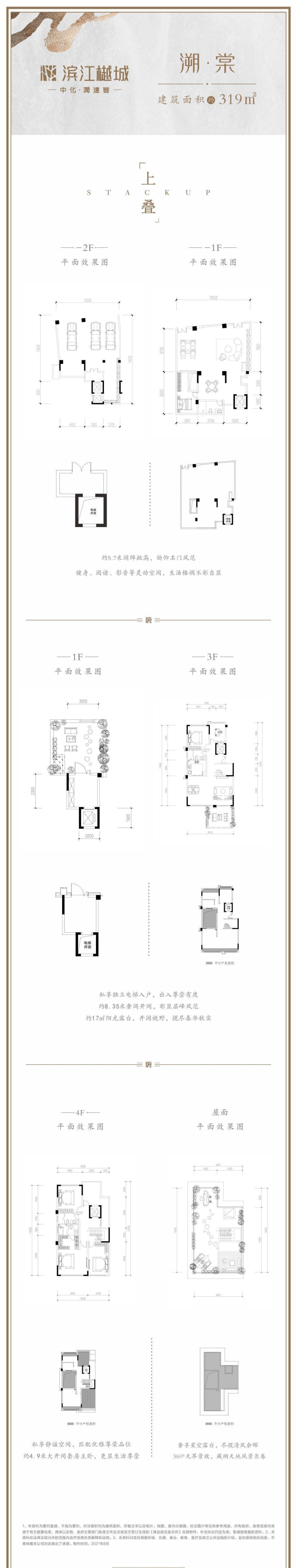
叠拼:上叠319㎡ 下叠348㎡


【滨江樾城】售楼处热线:028-62671228 【营销中心】
预约咨询〢提前联系咨询售楼中心置业顾问〢进行预约登记来访!
预约优惠〢售楼中心置业顾问为您买房保驾护航〢—匠心钜制恭迎品鉴 !
声明:本文由入驻焦点开放平台的作者撰写,除焦点官方账号外,观点仅代表作者本人,不代表焦点立场。


