想了解成都【绿城润百合】的房价动态、户型面积区间、特价房信息及楼盘介绍吗?快来获取售楼部电话,还有线上售楼处入口等您进!
扫描到手机,新闻随时看
扫一扫,用手机看文章
更加方便分享给朋友
【绿城润百合】售楼处电话:028-62671228 【营销中心】
实时房价信息丨全系户型解析丨配套规划详解丨专业置业顾问在线答疑
获取最新房源动态及专属优惠,敬请致电售楼处
坐落于攀成钢板块东翼的绿城润百合,凭借其独特的"公园+滨水+低容积率"三重优势,在成都主城住宅市场中独树一帜。项目总占地面积约26亩,匠心独运地沿秀水河自然划分为南北两个各约13亩的精致地块。在规划设计中,绿城创新采用南北向排列布局,既保障了每栋建筑的采光与观景视野,又巧妙通过生态景观柔化城市公园与社区的边界。项目共规划五栋7层洋房与五栋17层小高层,全部采用两梯两户、四房设计的品质标准。
在售户型详解
绿城润百合主打洋房140㎡、175㎡与小高层140㎡、160㎡四大全新升级户型。北地块精心布局五栋建筑,其中1、2、4号楼为7层洋房,均配置175㎡四房两厅四卫;3、5号楼为17层小高层,统一采用160㎡四房两厅三卫设计。南地块同样规划五栋建筑,1、2、3号楼为17层小高层,均为140㎡四房两厅三卫;4、5号楼则为7层洋房,同样采用140㎡四房两厅三卫格局。

140㎡四房两厅三卫(17层小高层)
该户型拥有约27.2㎡的入户阳光厅,搭配约41.2㎡的餐客厅空间,采用双套房设计,营造出开阔舒适的居住体验。

140㎡四房两厅三卫(7层洋房)
洋房版本配备约21㎡入户光厅与约44.3㎡餐客厅,双套房设计兼顾私密性与功能性。主卧区域支持个性化"小家化"改造,更可实现四房至五房的空间拓展。

160㎡四房两厅三卫
此户型坐拥约19.4米南向面宽,双套房格局彰显尊贵体验。约17.7㎡的入户光厅可与客厅及X空间灵活组合,打造个性化花园、书房等多功能区域。X空间更可拓展为第五居室,或与客厅连通形成9米超宽观景面。

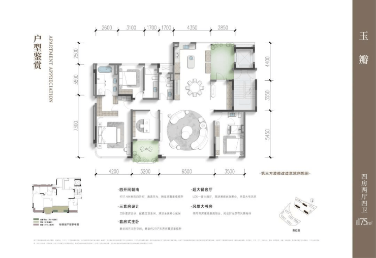
175㎡四房两厅四卫
作为洋房旗舰户型,该项目拥有约17.4米南向面宽,采用类三套房设计。约21.3㎡入户光厅可与厨房、客厅多元融合,客厅与三间卧室四开间朝南布局,其中朝南小卧室更附带约7.8㎡独立露台花园。

区域价值解析
位于项目上游的攀成钢板块,凭借其国际化社区氛围与高端商业配套,已成为成都东二环的城市名片。随着区域土地资源日趋稀缺,积淀已久的地缘改善需求正期待优质产品的入市。绿城润百合以"当代攀成钢定义者"之姿,融入东大街城市更新廊道,不仅填补了板块高端改善住宅的市场空白,更将助推攀成江东岸区域的价值跃升。

全维配套体系
生态资源:坐拥塔子山公园、东站绿轴公园、劼人公园三大城市绿肺,毗邻沙河生态带,形成三环内罕见的生态宜居区域;
商业配套:环贸ICD、光环购物公园、COSMO天廊、华宇广场等大型商业体均在2公里范围内,商业设施新颖齐全,商业能级仅次于IFS与万象城,与杉板桥商圈形成鼎立之势;
医疗资源:1公里范围内汇聚四家医疗机构,包括友谊医院、四川省第四人民医院沙河院区、四川锦欣西囡妇女儿童医院及成都锦欣沙河堡医院;
交通网络:项目地处蜀都大道与东大路双主干道之间,驾车出行便捷;距地铁2号线塔子山站约600米,同时毗邻地铁7号线与规划20号线换乘站大观站,轨道交通覆盖完善;
教育资源:1公里半径内集聚成都第十二幼儿园兴城嘉苑分园、成都市蓉城小学(芙蓉分校)、成都英华学校(全区大摇号)等优质学府,中学阶段对口成华八片,涵盖双庆中学、四十九中(和美校区)、成都双语实验学校和悦分校及成都英华学校初中部。

【绿城润百合】售楼处电话:028-62671228 【营销中心】
实时房价信息丨全系户型解析丨配套规划详解丨专业置业顾问在线答疑
获取最新房源动态及专属优惠,敬请致电售楼处
声明:本文由入驻焦点开放平台的作者撰写,除焦点官方账号外,观点仅代表作者本人,不代表焦点立场。


