成都【招商时代公园-天樾境 C 区】售楼部电话|房价走势说明_热销户型面积_优惠政策详情_项目动态更新_置业顾问一对一咨询
扫描到手机,新闻随时看
扫一扫,用手机看文章
更加方便分享给朋友
【招商时代公园】售楼处电话:028-62671228 【营销中心】
楼盘实时价格丨户型赏析丨配套规划丨置业顾问在线咨询
获取最新房源动态及专属优惠,敬请致电售楼处
【项目基础信息】
占地面积:34572㎡
总净用地面积:51.8亩
总计容建筑面积: 107100㎡
容积率:3.1
绿地率:35%
套数::618套
梯户比:2T2/2T3
装修标准:精装交付 现房
机动车位:1293个
非机动车位:1074个
在售户型
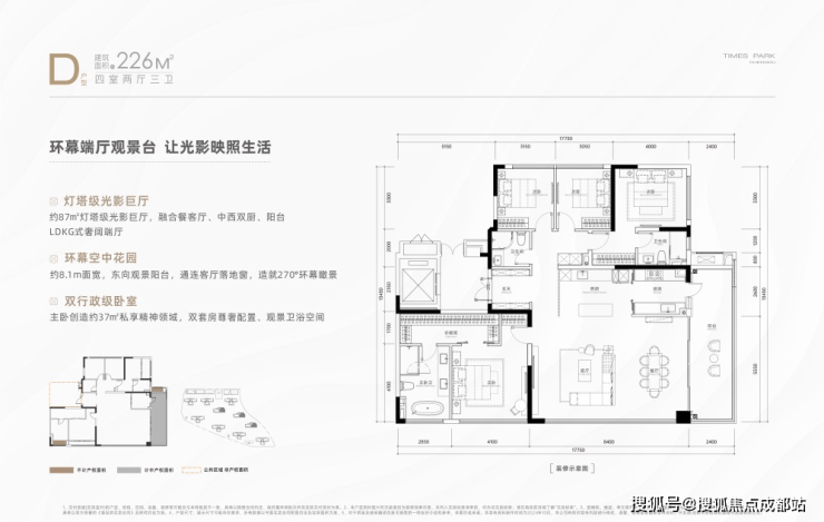
D户型/建面约226㎡四室两厅三卫

C户型/建面约193㎡四室两厅三卫

B户型/建面约174㎡四室两厅双卫

A户型/建面约143㎡四室两厅双卫

一、品牌篇
双世界500强 万亿央企
1.招商局创立于1872年,是中国民族工商业的先驱者。
2.招商局是一家业务多元的综合企业,业务主要集中于综合交通、特色金融、城市与园区综合开发运营三大核心产业。
3.总部设于香港,是在香港成立运营最早的中资企业之一招商局于1873年在香港开设经营机构,是香港历史最悠久的中资企业。
4.招商蛇口是招商局集团旗下城市综合开发运营板块的旗舰企业,截止2024年,全业务覆盖全球超156个城市和地区,开发精品项目超620个,服务千万客户。

二、区域/规划篇
天府新区,未来城市新中心
天府新区是由国务院正式授牌的国家级新区,承担着国家重大发展和改革开放战略任务。秉承成都“一城双核”的发展战略,天府新区直管区重点打造三大产业功能区,着力构建“成都未来城市新中心、成渝地区双城经济圈创新极核和开放门户、国家级新区高质量发展样板和中国式现代化公园城市先行区”。

天府总部商务区
天府总部商务区以公园城市为设计理念,总体设计28.6平方公里,中央核心区范围8.5平方公里。区域突出总部经济聚能和高端服务赋能,构建以总部经济为核心引领,形成多元产业体系,打造面向世界的中央商务区、成都未来城市新中心。招商时代公园,位于天府总部商务区中心区域。
成都科学城
突出科技创新策源和创新成果转化,坚持数字经济突破发展为带动,打造数字经济产业高地,大力发展高技术服务业,做大做强研发产业、科技产业集群,前瞻布局未来先导产业,抢占未来产业发展制高点。
天府数字文创城
聚焦网络视听、创意设计、文博旅游产业细分领域,实施高能级项目引育、产业生态构建、世界级IP孵化、文化品牌塑造总体战略,以网络视听为核心、创意设计和文博旅游为特色的“1+2”主导产业体系。(信息源自《四川天府新区直管区国土空间总体规划(2021-203)》)
在招商时代公园 先见成都的伟大进程
招商蛇口战略级作品, 787亩城市巨舰
天府总部商务区首创进阶版CBD发展新范式——中央商务公园(CBP)并实践,着力引导CBD发展路径变革、城市价值重塑,打造“人城境业”高度和谐统一的未来城市。
招商时代公园全面践行公园城市理念,秉承招商蛇口40余年深圳蛇口营城经验,以CBP为发展范式,实施公园引领(POD)+交通引导(TOD)+活力引动(VOD)的“3D融合”规划策略,先见成都面向世界的伟大进程。

面 / 繁华之上的城市公园
在招商时代公园,近享约3450亩天府公园。
线 / 步行可达的缎带公园
在招商时代公园,漫步交织的缎带公园。由全球顶尖景观设计单位SWA操刀,整体规划达约2160米、平均宽度达约95米的人字绿廊,为“遥望西岭雪山和龙泉山脉的自然风光”而设计,连接一园两河,发挥海绵城市、碳汇森林、生态风廊三大作用,延展开来更细密的缎带绿道,则将城市功能与大型公园相连,让“人均绿地可达率”降低至直线距离约300米内。
点 / 根植于生活的社交公园
在招商时代公园,参与建筑间生长的点状公园。首先,充分利用城市土地间的“金角银边”规划社交场景公园,让公园城市更具社交属性;其次,充分注重住宅及产业园区内的园林打造,让宅间公园根植于生活肌理。(以上规划及数据来源:《天府中央商务公园+3D融合规划概念》)
TOD——以公共交通引导城市发展
于快慢间,获得时间与空间上更多的自由,重新定位人、车、物竖向空间关系的立体城市系统。

地面减密:退台式低密商办沿步行公园体系的设计,结合绿廊穿插休闲空间和绿地,降低城市建筑用地密度,打造步行者的天堂。
地下加密:在轨交站点、区域地标及商业中心间的主体步行空间设置了活力商业广场,布局文化、休闲、展示等公共服务功能;同时依托轨道客流构架慢行主线,以及地下独立车行系统及各物业单元的地下大堂、地下停车场系统互通互联,并通过简洁导引系统进一步完善交通。
高效互联:地下三层布局【19号线:双机场空港线】、【6号线:主城新区联系线】、【16号线主城新区联系线(规划中)】、【26号线:新区环线(规划中)】、【S5线:成都都市圈眉山线(建设中)】,共5条轨道线路与4大站点系统,同时设置大型城市候机楼,由轨道编制的城市未来新中心枢纽正在逐步形成。
VOD——以活力引导城市发展
在繁华都会与烟火气的城市空间中,找回丢失的附近
优享全龄教育 葆育孩子菁英未来
周边名校云集,天府七中,天府七小,天府八小、天府九小、元音中小学、乐盟外籍人员子女学校等名校,为孩子预定高起点人生。(本资料仅为对项目周边教育资源进行介绍,不代表项目业主或子女能够入读相应学校,学校具体入读政策以届时政府发布政策为准。
塔尖级配套 一站式全能生活圈

地标下、产城里、职住平衡的未来活力城市
双超塔地标,城市活力引擎——
招商蛇口396超塔地标(在建)与约180米商务地标(规划),成为总部商务区的活力领航地标。

双中轴发展,聚焦产城共生——
以人字绿廊与福州路作为片区的生态中轴与经济中轴,汇聚高能级产业形态
职住接近、职住平衡的未来社区——
双中轴产城区向北、向南将逐步呈现为品质住宅区,聚集国际全维生活配套
商业繁华、大城生活精彩兑现——
天府招商花园城开业、时代公园life里商业街开街,大城已城,高端人居理想照进现实


三、项目价值篇
招商·时代公园|天樾境C区

新奢领域 地标旁的公园绮境
直面396超塔 三公园环绕 自然森境独领天西
天樾境C区位于396总部地标旁,坐享三面公园深入环抱的生态之境,同时兼顾与396地标对望的咫尺视野格局,形成宅中赏峰景、公园游绮境的生活意境。
天西北臻藏地段 甄稀价值难以复制
天樾境C区,既拥有天西目前完善的成型配套,也是天西北区最后的规模化供应楼盘,地块位于整个大盘的西北角,是承上启下的关键闭环,项目北侧是万科、首开龙湖、保利等豪宅巨头,南侧则是招商时代公园的核心腹地,尤其紧挨396『双子塔』地标,更使得它站稳了天西“C位”。

新奢艺境 让风景创造无限生活想象
园区景观中轴,指向人字绿廊与西岭雪山,整体以“川西秘境”为出发点,对标“雪山下的公园城市”3D人文生态模板,以园区内外自然高差形成多元场景表达,打造双环两廊、川西十景的园林景致,同时将架空层泛会所与景观体系紧密相融,打造自然会客厅,让川西景致嵌入生活,让度假成为日常。

内部景观 让川西景致嵌入生活
双环两廊:一场说走就走的旅行
双环——
·社区内打造约600米轻氧跑道环,提取318国道川藏线著名景点元素,落位跑道环形区,打造天府地理知识科普类健康跑道。
·社区外围结合超4.5万㎡绿廊公园,设置约1000米公园休闲漫步环,让公园漫步与社区慢跑联动,演绎优美的自然律动,真正做到公园里的社区、社区里的公园。

新奢礼遇 漫步红毯归家路
步步尊崇 红毯式礼宾与归家体验
首层入户大堂以超高挑高空间,打造尊崇入户礼序,地库大堂-首层大堂-电梯前室相互通连,精造三重星级精装精装公区及智能归家系统,契合星幕顶车库前导区,造就自然采光与精工艺术的融合。

三重入户精装大堂,共频都会尊崇领域
重构公区精致格调,让尊崇生活动线尽情延伸。天樾境以奢级酒店式精装标准,打造三重公区全精装体系,演绎繁华深处的精致归家体验。
奢尚入户大堂,以现代化风格为底蕴、简约美学质感为基调,将尊贵、私密等理念贯穿整体空间;选用一线品牌电梯,以臻质匠艺承载电梯前厅品质的至高规格;通过精心选材搭配高级色彩运用,打造更具时尚品位感的光幕地库空间,科学规划车行动线,以入微设计营造归家从容感。
新奢家庭 悦见改善生活美学
建面约143-226㎡公园绮境大宅,为中国新家庭关系设计生活场景;
从单一客厅到LDKG一体式欢乐聚厅,从工作时刻到亲子时光,再到味蕾盛宴,多元化生活共享,赋予生活理想格局。
【招商时代公园】售楼处电话:028-62671228 【营销中心】
楼盘实时价格丨户型赏析丨配套规划丨置业顾问在线咨询
获取最新房源动态及专属优惠,敬请致电售楼处
声明:本文由入驻焦点开放平台的作者撰写,除焦点官方账号外,观点仅代表作者本人,不代表焦点立场。


