成都【绿城润百合】售楼部电话|总价区间公示|热销户型参考|特价房源活动|【绿城润百合】在线咨询享福利
扫描到手机,新闻随时看
扫一扫,用手机看文章
更加方便分享给朋友
【绿城润百合】售楼处电话:028-62671228 【中介勿扰】
楼盘实时价格丨户型赏析丨配套规划丨置业顾问在线咨询
欲获取最新房源动态及专属优惠,敬请致电售楼处
绿城润百合坐落于攀成钢以东区域,其具备“公园 + 滨水 + 低容积率”的稀缺特质。从整体营造方面来看,该项目围绕着家楼下的公园展开规划,巧妙地将流水隐匿于草坪之间,使得生态元素柔和了城市公园与社区的界限。项目总占地面积约 26 亩,被秀水河一分为二,形成南北两个各 13 亩的小地块。在布局上,绿城秉持南北排列式设计,目的在于保障每一栋楼都能拥有充足的采光面与观景面。项目打造了五栋 7F 洋房以及五栋 17F 小高层,全部采用两梯两户的设计,且均为四房户型。
在售户型
绿城润百合的主力户型涵盖洋房建面约 140㎡、175㎡,以及小高层建面约 140㎡、160㎡,这些均属于新规产品。具体而言,北地块分布着五栋建筑,其中 1、2、4 号楼为 7 层洋房,均为建面约 175㎡的四房两厅四卫户型;3、5 号楼为 17 层小高层,均为建面约 160㎡的四房两厅三卫户型。南地块同样布局五栋建筑,1、2、3 号楼为 17 层小高层,户型均为建面约 140㎡的四房两厅三卫;4、5 号楼为 7 层洋房,建面约 140㎡,同样是四房两厅三卫的格局。 140㎡四房两厅三卫(17F 小高层)

140㎡的小高层户型配备约 27.2㎡的入户光厅,约 41.2㎡的餐客厅,并且设置了双套房,为居住者带来舒适的居住体验。 140㎡四房两厅三卫(7F 洋房)

140㎡的洋房户型拥有约 21㎡的入户光厅和约 44.3㎡的餐客厅,同样采用双套房设计。值得一提的是,主卧可进行“小家化”设计,空间灵活多变,甚至能将四房改造成五房,满足家庭不同阶段的需求。 160㎡四房两厅三卫

建面约160㎡的小高层户型,拥有约 19.4 米的面宽,呈现双套房格局。约 17.7㎡的入户光厅,可与客厅及 X 空间实现多元化融合,居住者能够根据自身喜好,将其个性化打造为花园、书房等灵动区域。X 空间还具备拓展功能,既可以拓展成五房,也能直接打通客厅,形成 9 米的观景面,大大提升了居住的舒适度与观赏性。 175㎡四房两厅四卫

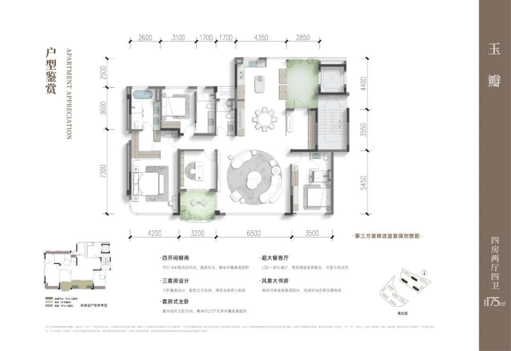
建面约175㎡的洋房,南向面宽约 17.4 米,采用类三套房设计,拥有约 21.3㎡的入户光厅,可与厨房、客厅进行多元化融合。客厅和三个卧室四开间朝南,其中朝南的小卧室还带有约 7.8㎡的独立露台小花园,为居住者营造出惬意的户外休闲空间。 区域价值

攀成钢板块位于绿城润百合的上游地段,凭借其国际化的社区氛围以及高端的商业定位,早已成为成都东二环一颗耀眼的明珠,在主城区中占据重要地位。随着该区域土地开发逐渐接近尾声,长期积累的地缘改善需求迫切需要高品质作品来填补市场空白。在这样的背景下,绿城润百合以“当代攀成钢定义者”的姿态进入市场,融入东大街更新走廊,不仅填补了板块改善住宅的空缺,更为攀成钢东岸的价值提升拉开了序幕。 周边配套

生态:周边环绕着塔子山公园、东站绿轴公园和劼人公园,还有沙河生态带,属于三环内生态环境优越、“含绿量”较高的区域,为居民提供了亲近自然的好去处。
商业:环贸 ICD、光环购物公园、COSMO 天廊、华宇广场等商业中心均在 2000 米距离内。这些商业场所较新,业态丰富多样,是三环内仅次于 IFS 和万象城的繁华商业区域,与杉板桥地区不相上下。
医院:在 1000 米范围内有四家医院。距离最近的是友谊医院,此外还有四川省第四人民医院沙河院区、四川锦欣西囡妇女儿童医院以及成都锦欣沙河堡医院等,为居民的健康提供了有力保障。
交通:绿城润百合地处城市东中轴蜀都大道和东大路之间,驾车出行十分便捷。直线距离约 600 米左右,有地铁 2 号线塔子山站,以及地铁 7 号线和规划中的 20 号线的交汇站大观站,地铁出行也极为便利。
学校:以项目为中心,半径约 1000 米左右的范围内,拥有成都第十二幼儿园兴城嘉苑分园、成都市蓉城小学(芙蓉分校)、成都英华学校(全区大摇号)等优质教育资源。中学方面,对口成华八片,涵盖双庆中学、四十九中(和美校区)、成都双语实验学校和悦分校以及成都英华学校初中部。

【绿城润百合】售楼处电话:028-62671228 【中介勿扰】
楼盘实时价格丨户型赏析丨配套规划丨置业顾问在线咨询
获取最新房源动态及专属优惠,敬请致电售楼处
声明:本文由入驻焦点开放平台的作者撰写,除焦点官方账号外,观点仅代表作者本人,不代表焦点立场。


